Pārdod biroju, Nītaures iela, Centrs / 280000€
Nav pieejams!

Atrašanās vieta:Rīga, Labais krasts, Centrs
Iela:Nītaures
Ēkas tips:Jaunais projekts
Telpas:3
Stāvs:1/7
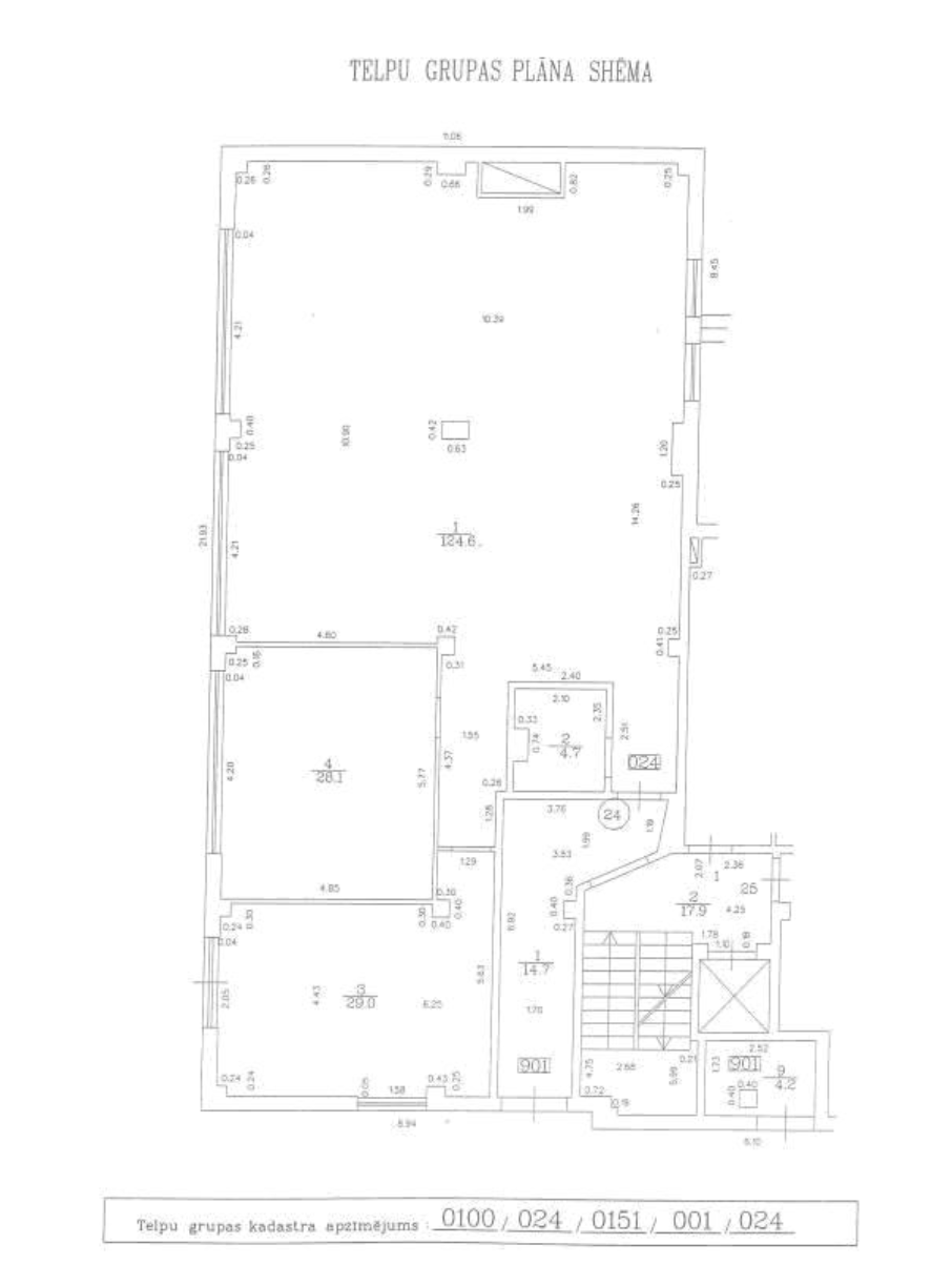
Platība:186 m²
Cena:280 000 € (1 505.4 €/m²)

Īpašuma apraksts

Birojs "klusajā" centrā- "Arēna Rīga" rajonā.
Daudzdzīvokļu ēkas 1. stāvā.


+ 1. stāvs.
+ Atsevišķa ieeja un fasādes un ieeja no kāpņu telpas.
+ Pilna apdare.
+ Platība sastāv no atvērtas telpas, 2 kabinetiem, wc.
+ Ēkai pilsētas apkure.
+ Uz ielas autostāvvieta.
Īpašums- domājamās daļas no ēkas un zemes.

    Īpašuma ID numurs: 9152

    Īpašums kartē

    • Bing karte
    • Bing bird eye
    • Openstreet Karte
    Edgars Regzdiņš
    Edgars Regzdiņš Aģents
    Sazināties ar aģentu:
    • Drukāt