Pārdod dzīvokli, Lielirbes iela 9a, Āgenskalns / 119500€

Atrašanās vieta:Rīga, Kreisais krasts, Āgenskalns
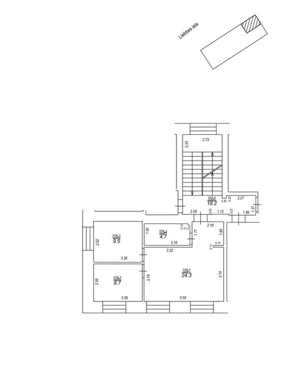
Iela:Lielirbes 9a
Ēkas tips:Jaunais projekts
Istabas:3
Stāvs:2/4
Platība:47.2 m²
Cena:119 500 € (2 531.8 €/m²)

Īpašuma apraksts

Mūsdienīgs un līdz detaļām pārdomāts 3-istabu dzīvoklis Lielirbes ielā 9a – lokācijā, kas piedāvā ērtu piekļuvi pilsētas centram, lidostai un iepirkšanās centram "Spice".

+ Gaumīgi pabeigts interjers – kvalitatīvas grīdas, koka durvis un pilnībā aprīkotas vannas istabas, kā arī iebūvētās virtuves;
+ Zemi komunālie maksājumi – maksā tikai par to, ko patiešām patērē! Individuāli, automātiski nolasāmi skaitītāji (elektrība, ūdens, siltums);
+ Ēka ir tikusi pilnībā renovēta – jauns jumts, fasāde, kāpņu telpas un inženierkomunikācijas;
+ Atsevišks dzīvokļa īpašums, zeme zem ēkas īpašumā;
+ Iekārtoti demo dzīvokļi, lai iedvesmotu un palīdzētu vieglāk iztēloties, kā varētu izskatīties Tavs jaunais mājoklis;
+ Māju apsaimnieko SIA "Namu guru", apsaimniekošanas maksa – 0,80 EUR/m² + PVN.

Iegādei pieejamas arī uzglabāšanas telpas pagrabstāvā un autostāvvietas.

Ēkā pieejami arī citi studio tipa, 2-istabu un 3-istabu dzīvokļi – zvaniet vai rakstiet, lai iegūtu plašāku informāciju un ieplānotu apskati.

Lielirbes iela 9a piedāvā izcilu lokāciju ar dažādām priekšrocībām – teicamu infrastruktūru, tuvumā esošiem veikaliem, restorāniem un sporta klubiem, lieliskiem sabiedriskā transporta savienojumiem, kā arī ātru piekļuvi lidostai un Jūrmalas šosejai. Apkārtne ar sakoptu vidi un zaļajām zonām, kas piemērotas gan aktīvai atpūtai, gan mierīgām pastaigām. Ideāla vieta gan ģimenēm, gan aktīviem pilsētniekiem, kuri novērtē ērtības un mobilitāti.

    Īpašuma ID numurs: 66684

    Īpašums kartē

    • Bing karte
    • Bing bird eye
    • Openstreet Karte
    Diāna Līdaka
    Diāna Līdaka Aģents
    Sazināties ar aģentu:
    • Drukāt