






















Pārdod dzīvokli, Ganību dambis iela 15, Centrs / 145000€
| Atrašanās vieta: | Rīga, Labais krasts, Centrs |
|---|---|
| Iela: | Ganību dambis 15 |
| Ēkas tips: | Renovēta pirmskara laika māja |
| Mēbeles: | Nemēbelēts |
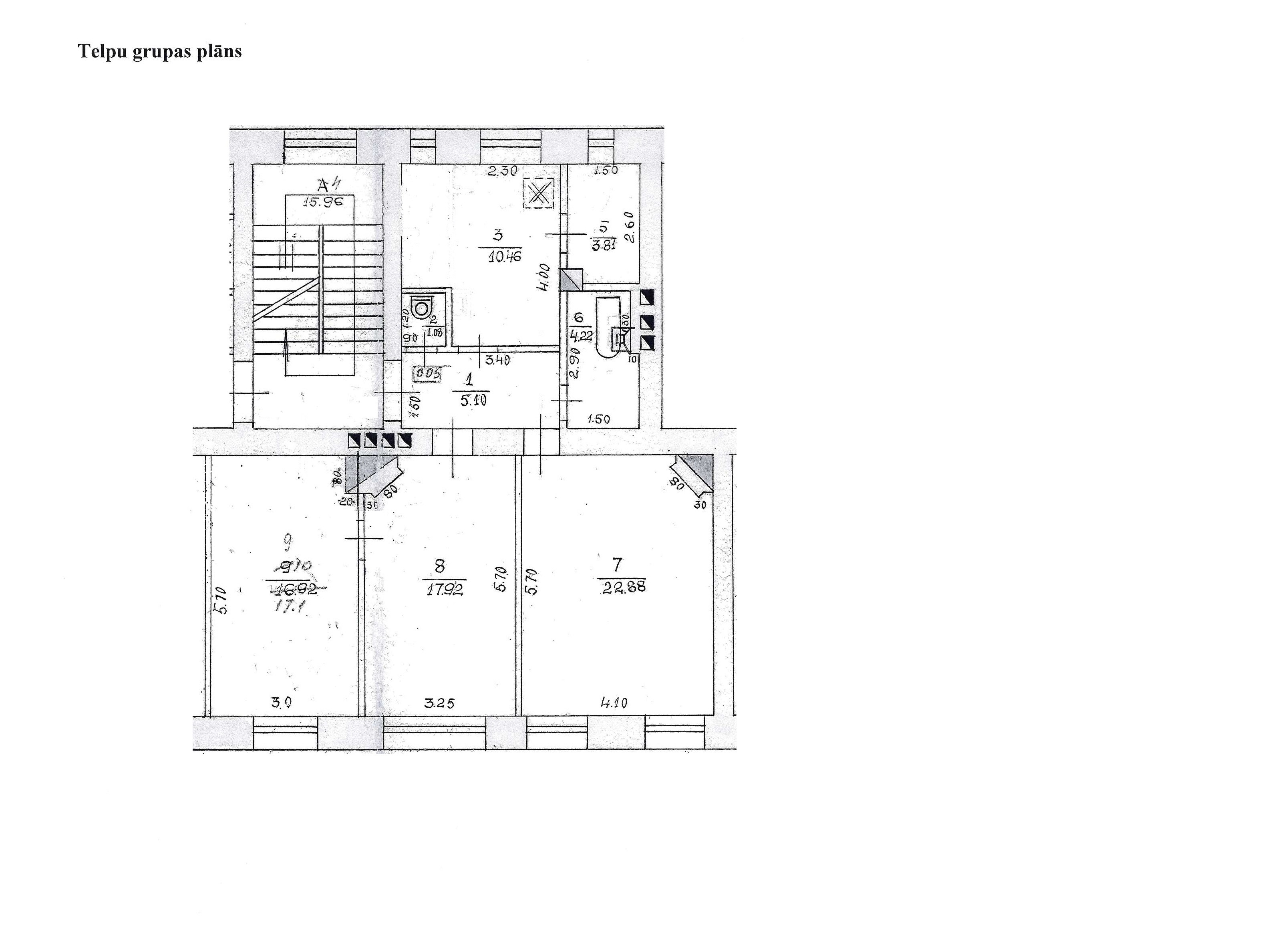
| Istabas: | 3 |
| Stāvs: | 3/6 |
| Platība: | 84 m² |
| Cena: | 145 000 € (1 726.2 €/m²) |
Īpašuma apraksts
Ekskluzīvs 3 istabu dzīvoklis izsmalcinātā Jūgendstila rezidencē Rīgas centrā
Piedāvājam iegādāties gaumīgu un kvalitatīvi renovētu 3 istabu dzīvokli pilnībā restaurētā Jūgendstila rezidencē, kur harmoniski apvienojas vēsturiskā elegance, arhitektūras autentiskums un mūsdienu komforta tehnoloģijas.
Šis īpašums atrodas slēgtā, sakoptā un labiekārtotā teritorijā, ko ieskauj zaļš, privāts pagalma parks ar elegantu lapeni – ideāla vide mierpilnai atpūtai un augstvērtīgai dzīves kvalitātei pilsētas centrā.
Rezidence sastāv no trim rūpīgi renovētām vēsturiskām ēkām, kurās saglabāts arhitektoniskais raksturs, vienlaikus nodrošinot mūsdienu tehniskos standartus. Visā ēkā pilnībā nomainītas komunikācijas – elektroinstalācija, ūdensvadi un kanalizācijas sistēmas –, garantējot drošību, energoefektivitāti un ilgtermiņa vērtību.
Izsmalcinātības un komforta priekšrocības:
+ Pārdomāts, funkcionāls plānojums ar atsevišķu virtuvi, kas nodrošina gan privātumu, gan elegantu dzīves telpas organizāciju
+ Iespaidīgs griestu augstums – 3,25 m, kas piešķir telpām majestātisku plašumu un gaisīgumu
+ Trīs sanmezgli, tostarp divas pilnvērtīgas vannas istabas un atsevišķa WC telpa – ideāli komfortablai ikdienai un viesu uzņemšanai
+ Autentisks, pilnībā restaurēts vēsturiskais kamīns – izsmalcināts interjera akcents ar patiesu rezidences raksturu
+ Elektriski apsildāmās grīdas sanmezglos ar moderniem, viedajiem termostatiem maksimālam komfortam
+ Divpusējs logu izvietojums, kas nodrošina bagātīgu dabisko apgaismojumu un harmonisku atmosfēru visas dienas garumā
+ Individuāli regulējami radiatori efektīvai klimata kontrolei un energoefektivitātei
+ Karstā ūdens nodrošinājums ar augstas kapacitātes 100 litru boileri
+ Zeme īpašumā – būtiska ilgtermiņa investīcijas vērtības priekšrocība.
Lokācija un dzīves kvalitāte:
Šī rezidence atrodas vienā no pieprasītākajiem un respektablākajiem centra rajoniem, kur valda miers, privātums un izsmalcināta pilsētas atmosfēra. Tiešā tuvumā pieejama augstvērtīga infrastruktūra – izglītības iestādes, restorāni, veikali un ērta sabiedriskā transporta pieejamība, nodrošinot nevainojamu līdzsvaru starp dinamisku pilsētas dzīvi un privātu rezidenci.
Šis īpašums ir lieliska izvēle prasīgam pircējam, kurš novērtē arhitektūras mantojumu, kvalitāti, prestižu un izcilu dzīves vidi pašā galvaspilsētas centrā.
- Apdare: augstvērtīgs remonts un apdare, koka dēļu grīda
- Aprīkojums: uzstādīta santehnika, siltās grīdas vannasistabā, vanna, duša, apsildāmās grīdas, kamīns
- Plānojums: istabas gan izolētas gan caurstaigājamas, vannasistaba un wc atsevišķi, vannasistaba un wc kopā
- Ēkas raksturojums: koka pakešu logi, spēļu laukums bērniem, fasādes māja, renovēta māja
- Atrašanās vieta: tuvumā upe, tuvumā parks, tuvumā veikali un kafejnīcas, tuvumā skolas un bērnudārzi, ērta sabiedriskā transporta kustība
- Autostāvvieta: stāvvieta pagalmā
- Komunikācijas: pilsētas apkure, pieejams optiskais internets, pilsētas ūdens apgāde, pilsētas kanalizācija
- Drošība: slēgta kāpņu telpa, videonovērošana
Īpašums kartē
Citi īpašumi šajā adresē
Līdzīgi īpašumi

Dzīvoklis,
Lāčplēša iela, 68m²259 160 € (3800 €/m²)
Dzīvoklis,
Elizabetes iela, 94m²530 000 € (5585 €/m²)
Dzīvoklis,
Lāčplēša iela, 65m²260 305 € (3950 €/m²)
Dzīvoklis,
Blaumaņa iela, 80m²280 000 € (3500 €/m²)
Dzīvoklis,
Lāčplēša iela iela, 74m²159 000 € (2149 €/m²)
Dzīvoklis,
Stabu iela, 79m²279 250 € (3522 €/m²)
Dzīvoklis,
Lāčplēša iela, 85m²157 990 € (1850 €/m²)
Dzīvoklis,
Jāņa Daliņa iela, 65m²188 000 € (2893 €/m²)
Dzīvoklis,
Raiņa bulvāris iela, 86m²355 000 € (4128 €/m²)
Dzīvoklis,
Lāčplēša iela, 77m²250 000 € (3247 €/m²)
Dzīvoklis,
Krišjāņa Valdemāra iela225 000 € (2185 €/m²)
Dzīvoklis,
Dzirnavu iela, 80m²155 000 € (1938 €/m²)
Dzīvoklis,
Dzirnavu iela, 66m²92 000 € (1394 €/m²)
Dzīvoklis,
Grostonas iela, 67m²284 900 € (4221 €/m²)
Dzīvoklis,
Republikas laukums iela285 000 € (3239 €/m²)
Dzīvoklis,
Palasta iela, 100m²273 000 € (2730 €/m²)
Dzīvoklis,
Akas iela, 92m²388 500 € (4223 €/m²)
Dzīvoklis,
Pērnavas iela, 68m²197 780 € (2900 €/m²)
Dzīvoklis,
Pulkveža Brieža iela, 70m²199 000 € (2843 €/m²)
Dzīvoklis,
P.Brieža iela, 109m²290 000 € (2661 €/m²)
Dzīvoklis,
Kalpaka bulvāris iela542 000 € (5066 €/m²)
Dzīvoklis,
Stabu iela, 79m²289 300 € (3639 €/m²)
Dzīvoklis,
Blaumaņa iela, 97m²290 000 € (2969 €/m²)
Dzīvoklis,
Elizabetes iela, 101m²620 000 € (6139 €/m²)
Dzīvoklis,
Krišjāņa Valdemāra iela184 000 € (2239 €/m²)
Dzīvoklis,
Elizabetes iela, 94m²465 000 € (4900 €/m²)
Dzīvoklis,
Baznīcas iela, 82m²238 380 € (2900 €/m²)
Dzīvoklis,
Zaļā iela, 98m²168 000 € (1706 €/m²)
Dzīvoklis,
Lāčplēša iela, 80m²270 000 € (3375 €/m²)
Dzīvoklis,
Alfrēda Kalniņa iela, 59m²141 600 € (2400 €/m²)
Dzīvoklis,
Stabu iela, 104m²375 345 € (3596 €/m²)
Dzīvoklis,
Skarņu iela, 80m²215 000 € (2658 €/m²)
Dzīvoklis,
Pulkveža Brieža iela, 79m²244 900 € (3100 €/m²)
Dzīvoklis,
Lāčplēša iela, 83m²153 920 € (1850 €/m²)
Dzīvoklis,
Pērnavas iela, 72m²227 070 € (3120 €/m²)
Dzīvoklis,
Skolas iela, 106m²328 600 € (3083 €/m²)
Dzīvoklis,
Rūpniecības iela, 99m²399 900 € (4040 €/m²)
Dzīvoklis,
Vīlandes iela, 64m²189 000 € (2954 €/m²)
Dzīvoklis,
Jāņa Daliņa iela, 64m²175 000 € (2709 €/m²)
Dzīvoklis,
Cēsu iela, 68m²90 000 € (1324 €/m²)
Dzīvoklis,
Miera iela, 108m²346 900 € (3213 €/m²)
Dzīvoklis,
Alfrēda Kalniņa iela, 88m²220 000 € (2500 €/m²)
Dzīvoklis,
Marijas iela, 86m²197 000 € (2291 €/m²)
Dzīvoklis,
Bruņinieku iela, 66m²93 000 € (1401 €/m²)
Dzīvoklis,
Krāsotāju iela, 60m²110 000 € (1813 €/m²)
Dzīvoklis,
Stabu iela, 76m²289 200 € (3761 €/m²)
Dzīvoklis,
Brīvības Bulvāris iela299 750 € (3331 €/m²)
Dzīvoklis,
Grostonas iela, 64m²304 900 € (4750 €/m²)
Dzīvoklis,
Alberta iela, 68m²330 000 € (4853 €/m²)
Dzīvoklis,
Lāčplēša iela iela, 86m²239 000 € (2770 €/m²)
Dzīvoklis,
Skolas iela, 61m²199 750 € (3256 €/m²)
Dzīvoklis,
Ganību dambis iela, 62m²82 900 € (1325 €/m²)
Dzīvoklis,
Rūpniecības iela, 60m²240 000 € (4000 €/m²)
Dzīvoklis,
Tallinas iela, 85m²171 000 € (2012 €/m²)
Dzīvoklis,
Katrīnas dambis iela, 64m²128 600 € (2000 €/m²)
Dzīvoklis,
Čaka iela, 72m²220 000 € (3056 €/m²)
Dzīvoklis,
Elizabetes iela, 70m²212 000 € (3029 €/m²)
Dzīvoklis,
Kalpaka bulvāris iela420 000 € (3963 €/m²)
Dzīvoklis,
Zirņu iela, 59m²133 500 € (2263 €/m²)
Dzīvoklis,
Brīvības iela, 106m²199 000 € (1869 €/m²)
Dzīvoklis,
Ģertrūdes iela, 101m²165 000 € (1634 €/m²)
Dzīvoklis,
Raiņa bulvāris iela, 93m²290 000 € (3092 €/m²)
Dzīvoklis,
Elizabetes iela, 101m²525 000 € (5199 €/m²)
Dzīvoklis,
Pulkveža Brieža iela, 92m²286 440 € (3100 €/m²)
Dzīvoklis,
Andrejostas iela, 66m²295 888 € (4484 €/m²)
Dzīvoklis,
Elizabetes iela, 101m²620 000 € (6139 €/m²)
Dzīvoklis,
Skolas iela, 61m²216 335 € (3500 €/m²)
Dzīvoklis,
Elizabetes iela, 103m²530 000 € (5146 €/m²)
Dzīvoklis,
Kalpaka bulvāris iela380 000 € (4419 €/m²)
Dzīvoklis,
Ģenerāļa Radziņa Krastmala iela172 000 € (2000 €/m²)
Dzīvoklis,
Dzirnavu iela, 69m²155 000 € (2247 €/m²)
Dzīvoklis,
Skolas iela, 96m²308 160 € (3200 €/m²)
Dzīvoklis,
Pērnavas iela, 66m²192 560 € (2900 €/m²)
Dzīvoklis,
Dzirnavu iela, 70m²215 000 € (3072 €/m²)
Dzīvoklis,
Pulkveža Brieža iela, 70m²210 300 € (3000 €/m²)
Dzīvoklis,
Grostonas iela, 86m²399 900 € (4618 €/m²)
Dzīvoklis,
Katrīnas dambis iela, 107m²230 000 € (2132 €/m²)
Dzīvoklis,
Miera iela, 84m²265 900 € (3136 €/m²)
Dzīvoklis,
Akas iela, 100m²330 330 € (3304 €/m²)
Dzīvoklis,
Dzirnavu iela, 76m²289 000 € (3793 €/m²)
Dzīvoklis,
Elizabetes iela, 61m²295 000 € (4805 €/m²)
Dzīvoklis,
Tomsona iela, 96m²274 000 € (2855 €/m²)
Dzīvoklis,
Tallinas iela, 70m²146 000 € (2086 €/m²)
Dzīvoklis,
Elizabetes iela, 62m²315 000 € (5081 €/m²)
Dzīvoklis,
Akas iela, 61m²223 600 € (3666 €/m²)
Dzīvoklis,
Dzirnavu iela, 72m²220 000 € (3039 €/m²)
Dzīvoklis,
Pērnavas iela, 87m²254 620 € (2900 €/m²)
Dzīvoklis,
Raiņa bulvāris iela, 95m²370 000 € (3895 €/m²)
Dzīvoklis,
Lāčplēša iela, 60m²228 380 € (3800 €/m²)
Dzīvoklis,
Dzirnavu iela, 68m²275 000 € (4045 €/m²)
Dzīvoklis,
Vīlandes iela, 60m²200 000 € (3334 €/m²)
Dzīvoklis,
Baznīcas iela, 82m²238 380 € (2900 €/m²)
Dzīvoklis,
Elizabetes iela, 98m²600 000 € (6110 €/m²)
Dzīvoklis,
Rūpniecības iela, 71m²280 000 € (3944 €/m²)
Dzīvoklis,
Strēlnieku iela, 84m²310 000 € (3678 €/m²)
Dzīvoklis,
Elizabetes iela, 92m²520 000 € (5653 €/m²)
Dzīvoklis,
Brīvības iela, 62m²265 000 € (4275 €/m²)
Dzīvoklis,
Kalpaka bulvāris iela290 000 € (4091 €/m²)
Dzīvoklis,
P.Brieža iela, 99m²299 000 € (3006 €/m²)
Dzīvoklis,
Baznīcas iela, 98m²230 000 € (2347 €/m²)
Dzīvoklis,
Miera iela, 81m²294 900 € (3606 €/m²)
Dzīvoklis,
Lāčplēša iela, 63m²139 480 € (2200 €/m²)
Dzīvoklis,
Elizabetes iela, 62m²305 000 € (4920 €/m²)
Dzīvoklis,
Pērnavas iela, 70m²192 560 € (2744 €/m²)
























