





























Pārdod dzīvokli, Skolas iela 30, Centrs / 169000€
| Atrašanās vieta: | Rīga, Labais krasts, Centrs |
|---|---|
| Iela: | Skolas 30 |
| Ēkas tips: | Renovēta pirmskara laika māja |
| Mēbeles: | Tikai iebūvētās mēbeles |
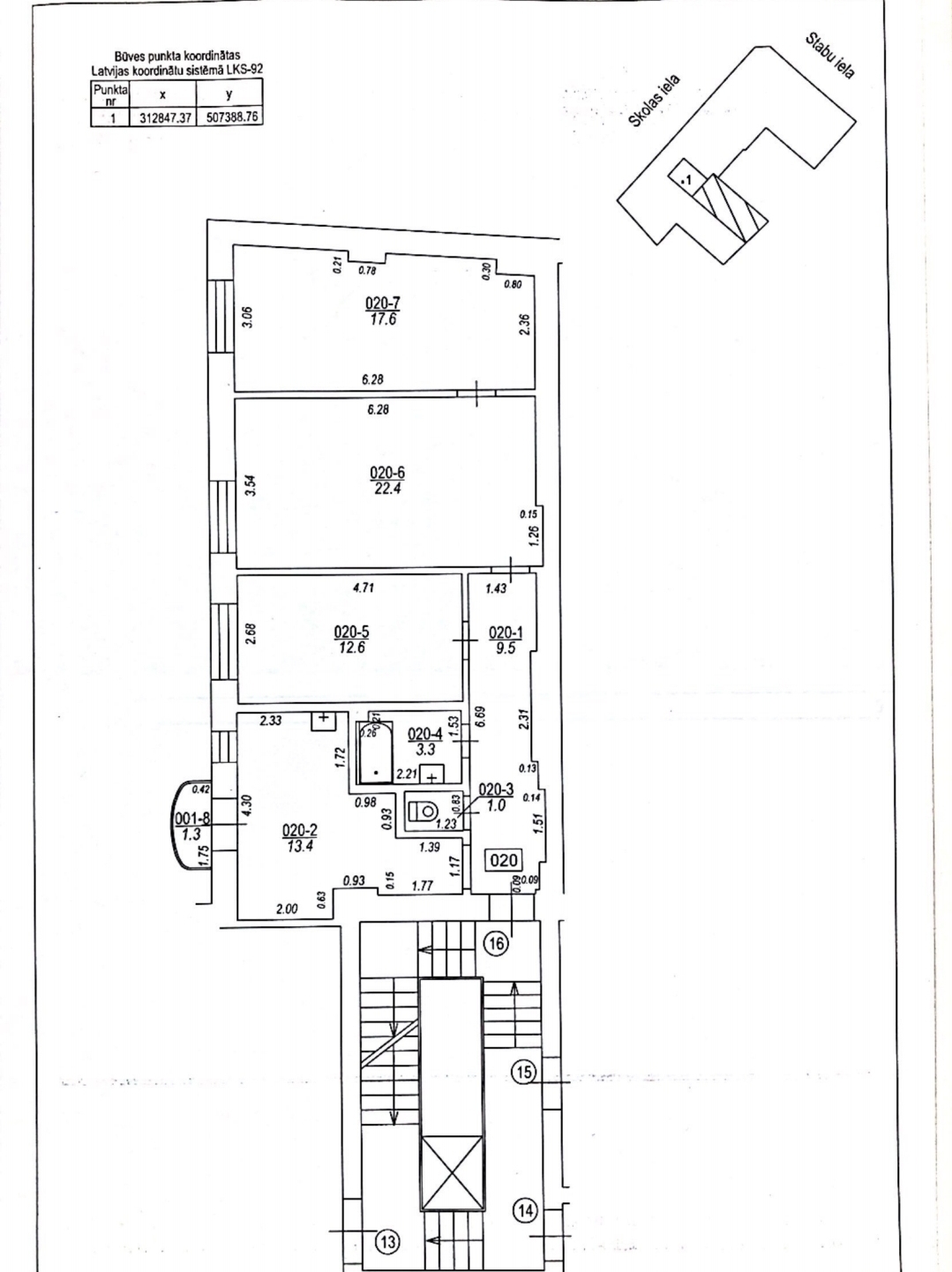
| Istabas: | 3 |
| Stāvs: | 6/6 |
| Platība: | 81.1 m² |
| Cena: | 169 000 € (2 083.9 €/m²) |
Īpašuma apraksts
Renovētā ēkā 3 istabu dzīvoklis ar balkonu.
2 izolētas guļamistabas, plaša viesistaba, virtuve un dalīts sanitārais mezgls. Logi vērsti uz iekšpagalmu, kas nodrošina dzīvoklī klusumu.
Dzīvoklis labā stāvoklī, remonts veikts pirms pāris gadiem. Labas koka durvis un atjaunota parketa grīda.
Vannas istabā siltā grīda.
Atjaunots balkons.
Pieejama gāze.
Ēkas kapitālais remonts pabeigts 2024.gada vasarā, kurā tika veikts:
- fasādes remonts;
- kāpņu telpas remonts;
- nomainīta apkures sistēma, ir individuāli APKURES SKAITĪTĀJI;
- jauni stāvvadi, kanalizācija un maģistrālā elektrība;
- nosiltināti bēniņi un pagrabs;
- pirms 3 gadiem mainīts jumts un atjaunoti skursteņi;
- drīzumā plānots mainīt liftu, šobrīd tas nestrādā.
Virs kāpņu telpas dienas gaismas stikli, kuri tiek atjaunoti.
Iebūvētā virtuve un vienā istabā lielais sienas skapis ir iekļauts cenā.
Apsaimniekošana 0.55 eur/kvm.
Ikmēneša mājas remonta kredīta maksājums 159 eur.
Zemi komunālie maksājumi.
Zeme īpašumā.
- Apdare: remonts taisīts pēdējo 2-3 gadu laikā, parketa grīda
- Aprīkojums: iebūvēta virtuve, cepeškrāsns, iebūvēti sienas skapji, siltās grīdas vannasistabā, vanna, balkons/lodžija
- Plānojums: vannasistaba un wc atsevišķi, telpas gan izolētas gan caurstaigājamas
- Ēkas raksturojums: ieeja no ēkas fasādes, namrunis, pakešu logi, pagalma māja, pirmskara māja, renovēta māja
- Atrašanās vieta: tuvumā veikali un kafejnīcas, tuvumā skolas un bērnudārzi, ērta sabiedriskā transporta kustība
- Autostāvvieta: maksas (Rīgas satiksmes) stāvvieta uz ielas
- Drošība: slēgta kāpņu telpa
Īpašums kartē
Citi īpašumi šajā adresē
Līdzīgi īpašumi

Dzīvoklis,
Raiņa bulvāris iela, 95m²370 000 € (3895 €/m²)
Dzīvoklis,
Elizabetes iela, 101m²525 000 € (5199 €/m²)
Dzīvoklis,
Pulkveža Brieža iela, 92m²286 440 € (3100 €/m²)
Dzīvoklis,
Lāčplēša iela, 85m²157 990 € (1850 €/m²)
Dzīvoklis,
Katrīnas dambis iela, 64m²128 600 € (2000 €/m²)
Dzīvoklis,
Dzirnavu iela, 69m²155 000 € (2247 €/m²)
Dzīvoklis,
Alberta iela, 68m²330 000 € (4853 €/m²)
Dzīvoklis,
Cēsu iela, 68m²90 000 € (1324 €/m²)
Dzīvoklis,
Elizabetes iela, 101m²620 000 € (6139 €/m²)
Dzīvoklis,
Stabu iela, 76m²289 200 € (3761 €/m²)
Dzīvoklis,
Elizabetes iela, 101m²620 000 € (6139 €/m²)
Dzīvoklis,
Vīlandes iela, 64m²189 000 € (2954 €/m²)
Dzīvoklis,
Terbatas iela, 58m²90 000 € (1550 €/m²)
Dzīvoklis,
Elizabetes iela, 92m²520 000 € (5653 €/m²)
Dzīvoklis,
Skolas iela, 61m²199 750 € (3256 €/m²)
Dzīvoklis,
Lāčplēša iela, 63m²139 480 € (2200 €/m²)
Dzīvoklis,
Krišjāņa Valdemāra iela225 000 € (2185 €/m²)
Dzīvoklis,
Ganību dambis iela, 57m²79 000 € (1367 €/m²)
Dzīvoklis,
Akas iela, 100m²330 330 € (3304 €/m²)
Dzīvoklis,
Marijas iela, 86m²197 000 € (2291 €/m²)
Dzīvoklis,
Dzirnavu iela, 76m²289 000 € (3793 €/m²)
Dzīvoklis,
Grostonas iela, 67m²284 900 € (4221 €/m²)
Dzīvoklis,
Lāčplēša iela, 65m²260 305 € (3950 €/m²)
Dzīvoklis,
Čaka iela, 72m²220 000 € (3056 €/m²)
Dzīvoklis,
Elizabetes iela, 70m²212 000 € (3029 €/m²)
Dzīvoklis,
Skolas iela, 61m²216 335 € (3500 €/m²)
Dzīvoklis,
Lāčplēša iela, 60m²228 380 € (3800 €/m²)
Dzīvoklis,
Tomsona iela, 96m²274 000 € (2855 €/m²)
Dzīvoklis,
Lāčplēša iela, 68m²259 160 € (3800 €/m²)
Dzīvoklis,
Lāčplēša iela, 80m²270 000 € (3375 €/m²)
Dzīvoklis,
Tallinas iela, 85m²171 000 € (2012 €/m²)
Dzīvoklis,
Jeruzalemes iela, 58m²220 000 € (3748 €/m²)
Dzīvoklis,
Krāsotāju iela, 60m²110 000 € (1813 €/m²)
Dzīvoklis,
Miera iela, 81m²294 900 € (3606 €/m²)
Dzīvoklis,
Raiņa bulvāris iela, 86m²355 000 € (4128 €/m²)
Dzīvoklis,
Jāņa Daliņa iela, 64m²175 000 € (2709 €/m²)
Dzīvoklis,
Skarņu iela, 80m²215 000 € (2658 €/m²)
Dzīvoklis,
Vīlandes iela, 60m²200 000 € (3334 €/m²)
Dzīvoklis,
Elizabetes iela, 103m²530 000 € (5146 €/m²)
Dzīvoklis,
Pērnavas iela, 72m²227 070 € (3120 €/m²)
Dzīvoklis,
Lāčplēša iela, 83m²153 920 € (1850 €/m²)
Dzīvoklis,
Elizabetes iela, 62m²315 000 € (5081 €/m²)
Dzīvoklis,
Stabu iela, 79m²289 300 € (3639 €/m²)
Dzīvoklis,
Kalpaka bulvāris iela290 000 € (4091 €/m²)
Dzīvoklis,
Ģertrūdes iela, 101m²165 000 € (1634 €/m²)
Dzīvoklis,
Republikas laukums iela285 000 € (3239 €/m²)
Dzīvoklis,
Zirņu iela, 59m²133 500 € (2263 €/m²)
Dzīvoklis,
Elizabetes iela, 94m²465 000 € (4900 €/m²)
Dzīvoklis,
Merķeļa iela, 56m²204 840 € (3600 €/m²)
Dzīvoklis,
Grostonas iela, 86m²399 900 € (4618 €/m²)
Dzīvoklis,
Ģenerāļa Radziņa Krastmala iela172 000 € (2000 €/m²)
Dzīvoklis,
Akas iela, 61m²223 600 € (3666 €/m²)
Dzīvoklis,
Lāčplēša iela iela, 74m²159 000 € (2149 €/m²)
Dzīvoklis,
Skolas iela, 96m²340 000 € (3531 €/m²)
Dzīvoklis,
Blaumaņa iela, 97m²290 000 € (2969 €/m²)
Dzīvoklis,
Baznīcas iela, 82m²238 380 € (2900 €/m²)
Dzīvoklis,
Lāčplēša iela, 57m²195 000 € (3416 €/m²)
Dzīvoklis,
Palasta iela, 100m²273 000 € (2730 €/m²)
Dzīvoklis,
Pulkveža Brieža iela, 70m²199 000 € (2843 €/m²)
Dzīvoklis,
Baznīcas iela, 82m²238 380 € (2900 €/m²)
Dzīvoklis,
Kalpaka bulvāris iela380 000 € (4419 €/m²)
Dzīvoklis,
Dzirnavu iela, 68m²275 000 € (4045 €/m²)
Dzīvoklis,
Dzirnavu iela, 70m²215 000 € (3072 €/m²)
Dzīvoklis,
Pulkveža Brieža iela, 70m²210 300 € (3000 €/m²)
Dzīvoklis,
Miera iela, 84m²265 900 € (3136 €/m²)
Dzīvoklis,
Rūpniecības iela, 99m²399 900 € (4040 €/m²)
Dzīvoklis,
Blaumaņa iela, 80m²280 000 € (3500 €/m²)
Dzīvoklis,
Elizabetes iela, 98m²600 000 € (6110 €/m²)
Dzīvoklis,
Pērnavas iela, 66m²192 560 € (2900 €/m²)
Dzīvoklis,
Rūpniecības iela, 60m²240 000 € (4000 €/m²)
Dzīvoklis,
Rūpniecības iela, 71m²280 000 € (3944 €/m²)
Dzīvoklis,
Alfrēda Kalniņa iela, 88m²220 000 € (2500 €/m²)
Dzīvoklis,
Akas iela, 92m²388 500 € (4223 €/m²)
Dzīvoklis,
Andrejostas iela, 66m²295 888 € (4484 €/m²)
Dzīvoklis,
Ganību dambis iela, 62m²82 900 € (1325 €/m²)
Dzīvoklis,
Alfrēda Kalniņa iela, 59m²141 600 € (2400 €/m²)
Dzīvoklis,
Grostonas iela, 64m²304 900 € (4750 €/m²)
Dzīvoklis,
Pērnavas iela, 70m²192 560 € (2744 €/m²)
Dzīvoklis,
Brīvības Bulvāris iela299 750 € (3331 €/m²)
Dzīvoklis,
Pērnavas iela, 87m²254 620 € (2900 €/m²)
Dzīvoklis,
Ganību dambis iela, 84m²145 000 € (1727 €/m²)
Dzīvoklis,
Brīvības iela, 62m²265 000 € (4275 €/m²)
Dzīvoklis,
Bruņinieku iela, 66m²93 000 € (1401 €/m²)
Dzīvoklis,
Katrīnas dambis iela, 58m²113 100 € (1950 €/m²)
Dzīvoklis,
Dzirnavu iela, 80m²155 000 € (1938 €/m²)
Dzīvoklis,
Stabu iela, 104m²375 345 € (3596 €/m²)
Dzīvoklis,
Elizabetes iela, 62m²305 000 € (4920 €/m²)
Dzīvoklis,
Elizabetes iela, 61m²295 000 € (4805 €/m²)
Dzīvoklis,
Pulkveža Brieža iela, 79m²244 900 € (3100 €/m²)
Dzīvoklis,
Krišjāņa Valdemāra iela184 000 € (2239 €/m²)
Dzīvoklis,
Elizabetes iela, 94m²530 000 € (5585 €/m²)
Dzīvoklis,
Lāčplēša iela, 77m²250 000 € (3247 €/m²)
Dzīvoklis,
Tallinas iela, 57m²129 000 € (2264 €/m²)
Dzīvoklis,
Dzirnavu iela, 72m²220 000 € (3039 €/m²)
Dzīvoklis,
Zaļā iela, 98m²168 000 € (1706 €/m²)
Dzīvoklis,
Jāņa Daliņa iela, 65m²188 000 € (2893 €/m²)
Dzīvoklis,
Stabu iela, 79m²279 250 € (3522 €/m²)
Dzīvoklis,
Tallinas iela, 70m²146 000 € (2086 €/m²)
Dzīvoklis,
Pērnavas iela, 68m²197 780 € (2900 €/m²)
Dzīvoklis,
Baznīcas iela, 98m²230 000 € (2347 €/m²)
Dzīvoklis,
Raiņa bulvāris iela, 93m²290 000 € (3092 €/m²)
Dzīvoklis,
P.Brieža iela, 99m²299 000 € (3006 €/m²)
Dzīvoklis,
Lāčplēša iela iela, 86m²239 000 € (2770 €/m²)
Dzīvoklis,
Strēlnieku iela, 84m²310 000 € (3678 €/m²)































