Продают дом, улица Svētes, Jaundubulti / 610000€650000€Снижена цена!

Местонахождение:Jūrmala, Jaundubulti
Улица:Svētes
Мебель:С мебелью
Количество комнат:5
Площадь:250 м²
Площадь земли:500 м²
Цена:610 000 € (650 000€) (2 440 €/м²)
Дополнительные издержки:коммунальные платежи

Описание объекта

Продаются просторный, современный и светлый семейный дом в Яундубултах с отдельным гостевым домиком и баней. Недвижимость расположена в тихом, зеленом уголке соснового леса — идеальное место для спокойной жизни на природе, сохраняя при этом все городские удобства.
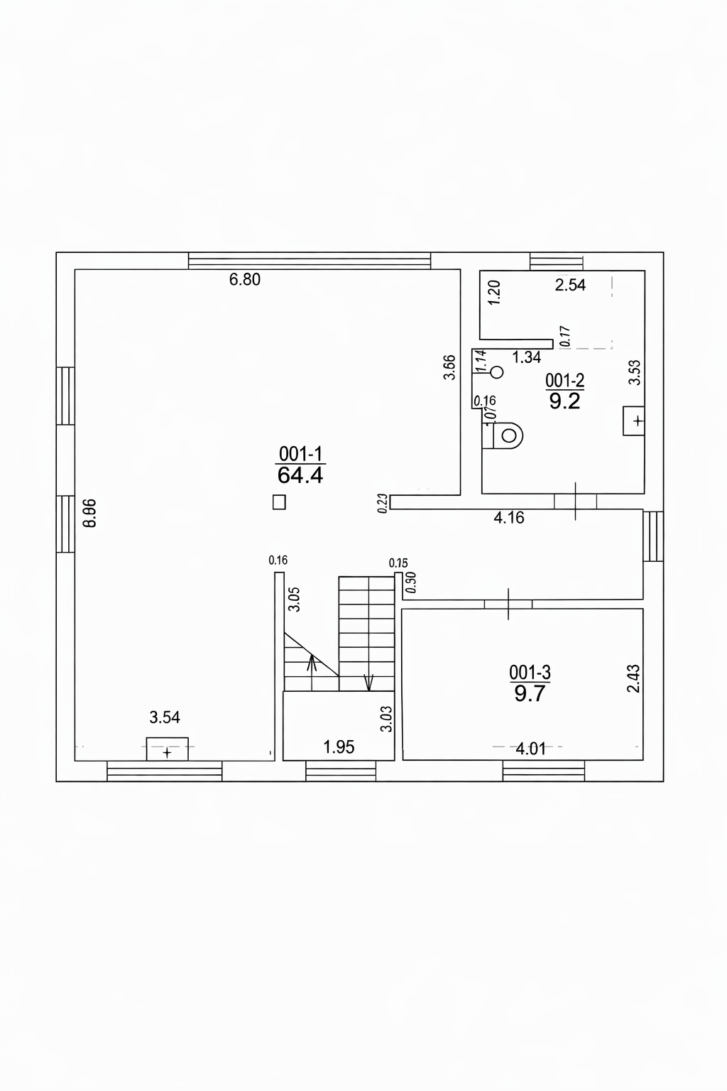
Дом (180 м²)
Дом тщательно ухожен и функционально спланирован.
На 1-м этаже расположена просторная гостиная с камином, создающим особую атмосферу уюта, кухня с обеденной зоной, спальня или кабинет, а также ванная комната.
На 2-м этаже находятся три отдельные спальни и две ванные комнаты, обеспечивающие комфорт как для семьи, так и для гостей.
Территория красиво благоустроена, с ухоженным садом и зеленым двором для отдыха на свежем воздухе.
Деревянный гостевой домик с баней (70 м²)
На 1-м этаже — гостиная с кухонной зоной, ванная комната и баня.
На 2-м этаже расположены две спальни.
Во дворе также имеется купель (горячая бочка), позволяющая наслаждаться отдыхом в любое время года.
Это прекрасное место для приема гостей — в Юрмале всегда найдется кто-то, кто захочет приехать в гости!
Дополнительные преимущества:
Все городские коммуникации
Газовое отопление
Тихий и безопасный район
Расположение особенно привлекательно — всего 300 метров до моря. Рядом находятся пляж, Mellužu estrāde, велосипедная дорожка и остановки общественного транспорта. Jomas iela и Dzintaru koncertzāle расположены всего в 5 минутах езды на автомобиле.
Во дворе оборудована детская игровая зона — горка (спусковая трасса), баскетбольная площадка, игровой домик, скалодром и песочница.
Дом отличается высокой энергоэффективностью и низкими эксплуатационными расходами.
Отличный выбор для тех, кто ценит тишину, природу, комфорт и возможность наслаждаться стилем жизни Юрмалы в полной мере.

  • Отделка: состояние очень хорошее, высококачественный ремонт и отделка, паркетный пол
  • Оборудование: встроенная кухня, духовка, посудомоечная машина, полностью Меблированный, встроенные настенные шкафы, установлена сантехника, пол с подогревом в ванной комнате, ванна, душ, полотенцесушитель, стиральная машина, бассейн, баня/сауна, камин, балкон/лоджия, терраса
  • Планировка: все комнаты изолированные, ванная комната и wc раздельно
  • Характеристика здания: частный дом
  • Местонахождение: поблизости море, поблизости лес, поблизости парк, поблизости школы и детские сады, удобное сообщение общественного транспорта
  • Автостоянка: автостоянка во дворе, бесплатная стоянка на улице
  • Коммуникации: газовое отопление, доступен интернет, доступно телевидение
  • Безопасность: доступна сигнализация, закрытый двор
ID номер объекта: 66930

Объект на карте

Dainis Sperga
Dainis Sperga Агент
Связаться с агентом:
  • Распечатать

Другие объекты по этому адресу