Продают дом, улица Ventspils, Kuldīga / 70000€

Местонахождение:Kuldīgas novads, Kuldīga
Улица:Ventspils
Количество комнат:2
Этаж:1/1
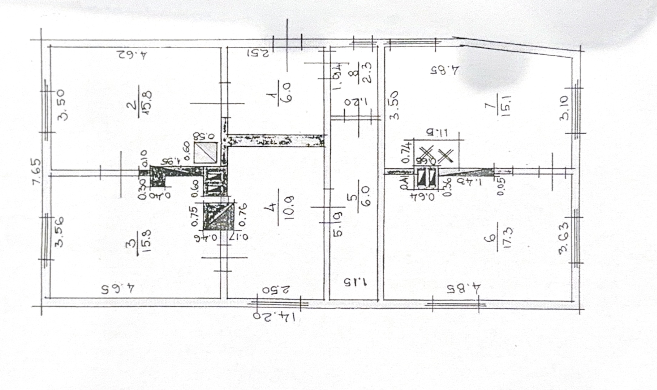
Площадь:89.2 м²
Площадь земли:369 м²
Цена:70 000 € (784.8 €/м²)

Описание объекта

Продаётся жилой дом в Кулдиге – с инвестиционным потенциалом

Продаётся одноэтажный жилой дом с земельным участком в Кулдиге — городе с высоким туристическим потоком и развитой культурной средой.

Объект подходит как для проживания, так и для инвестиций с возможностью развития арендного бизнеса.

Год постройки дома – 1920;
1 этаж, без подвала;
4 комнаты;
Чердачное помещение;
Фундамент – железобетонная конструкция;
Крыша – асбестоцементные листы;

Коммуникации и техническое состояние:

Печное отопление;
Подключение к электричеству;
Вода заведена в дом;
Есть возможность подключения к городской канализации (по ул. Вентспилс).

Объект требует реновации, что открывает широкие возможности для развития.
После реконструкции возможно создать до 4 отдельных квартир, которые особенно востребованы для краткосрочной аренды.

Кулдига — один из самых посещаемых туристических городов Латвии, с:

статусом объекта Всемирного наследия UNESCO (исторический центр);
Вентас Румбой — самым широким водопадом в Европе;
активным туристическим сезоном в течение всего года.

Такая локация обеспечивает стабильный спрос на арендное жильё (Airbnb, Booking и др.).

~12 минут до старого города Кулдиги;
Менее 1 км до комплекса зданий синагоги;
Рядом: исторический центр, культурные объекты, инфраструктура;
Удобный подъезд и комфортная среда для проживания.

Свяжитесь с нами для получения дополнительной информации или организации просмотра.

  • Отделка: необходим капитальный ремонт
  • Планировка: комнаты как изолированные так и проходные
  • Характеристика здания: фасадный дом
  • Местонахождение: поблизости река
ID номер объекта: 67233

Объект на карте

Tatjana Šapošņikova
Tatjana Šapošņikova Агент
Связаться с агентом:
  • Распечатать