Продают домовладение, улица Kalēju, Vecrīga / 2010000€

Местонахождение:Rīga, Labais krasts, Centrs
Улица:Kalēju
Площадь:3060 м²
Площадь земли:2364 м²
Цена:2 010 000 € (656.9 €/м²)

Описание объекта

Комплекс зданий и земельный участок в Старой Риге.

(Улица Кунгу 34, улица Калēju 78, улица 13 января 25)
Аукцион. Начало 23 февраля 2026 года, регистрация до 15 марта.

Ранее здесь располагался Центр социального обслуживания, но уже 4 года объект не используется. Здание имеет кабинетную планировку с коридором посередине.
В настоящее время все коммуникации в здании отключены.

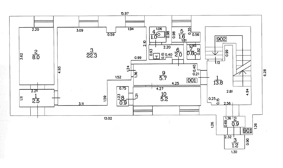
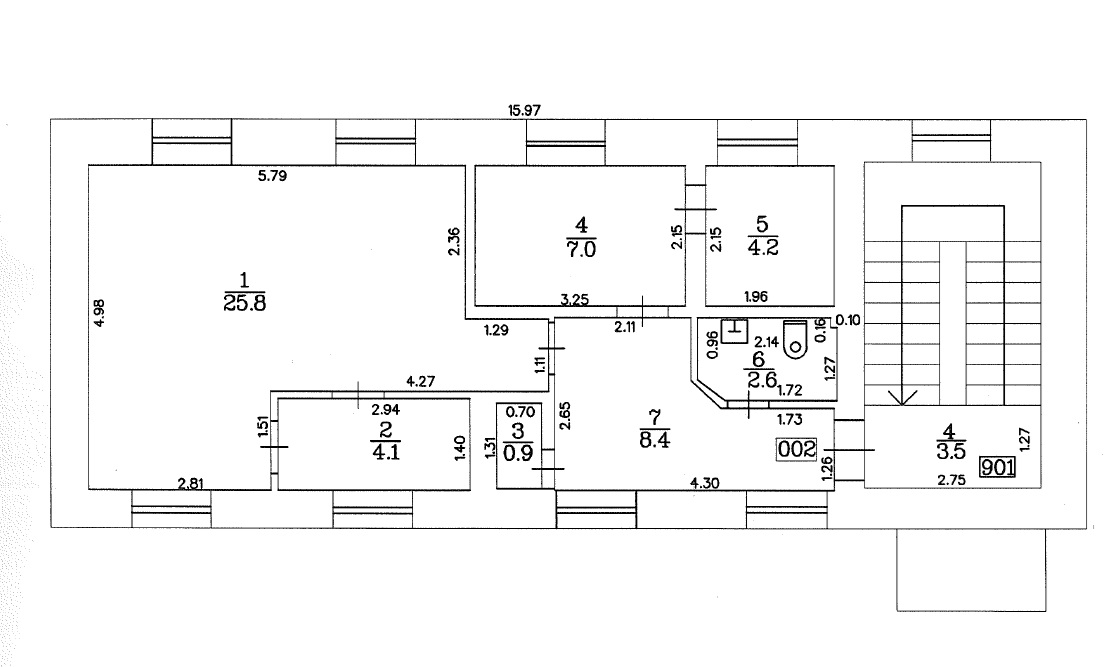
1) Каменное офисное здание, 4 этажа и полуподвал, общая площадь — 2875 кв.м, полезная площадь — 2773 кв.м. Высота потолков на первых двух этажах — 3,80 м. Здание построено в 1850 году, реконструкция/восстановление проведено в 2006 году.
2) Каменное офисное здание, 2 этажа и подвал, площадь — 185 кв.м. Высота потолков — 2,90 м.
3) Земельный участок состоит из двух смежных частей площадью 2104 и 260 кв.м.
Примерно 500 кв.м земли теоретически возможно застроить. На части этой земли в настоящее время растут деревья.

Объект находится в зоне смешанной застройки центра (JC8).
Большое здание расположено в зоне общественной застройки, а небольшой земельный участок — в зоне застройки центра.
Доступен акт обследования собственности, проведенный Рижским управлением недвижимости в марте 2024 года, а также два технических заключения, составленных в 2016 и 2021 годах.
Разработан строительный проект "Укрепление несущих конструкций здания".

Здания являются частью архитектурного памятника государственного значения "Комплекс двора Юрского госпиталя и почты".
Собственность расположена на территории объекта Всемирного наследия ЮНЕСКО "Исторический центр Риги", памятника градостроительства государственного значения "Исторический центр города Риги" и археологического памятника государственного значения "Археологический комплекс Старой Риги".

В большом здании имеется лифт.
Установлена новая вентиляционная система в части здания.
Собственный тепловой узел.

Мы вышлем дополнительную информацию по запросу.

  • Местонахождение: поблизости река, поблизости парк, поблизости магазины и кафе, поблизости школы и детские сады, удобное сообщение общественного транспорта, большой поток водителей
  • Коммуникации: городское отопление с индивидуальным счетчиком, городское водоснабжение, городская канализация
ID номер объекта: 66473

Объект на карте

  • Карта Bing
  • Bing birds eye
  • Карта Openstreet
Ivars Blanks
Ivars Blanks Агент
Связаться с агентом:
  • Распечатать