Investment property, Marijas street, Centrs / 1456000€

Location:Rīga, Labais krasts, Centrs
Street:Marijas
Floor:3/6 (ir lifts)
Area:1060 m²
Land area:2168 m²
Price:1 456 000 € (1 373.6 €/m²)

Property description

Real estate in the city center, next to the Central Station.

A reconstruction project for converting the property into apartments has been approved.

Property composition:

Building – undivided shares of the co-owned property

Land – undivided shares of the co-owned property

A registered co-ownership usage agreement is recorded in the Land Register.

+ Premises area: 1060 m²
+ Total land area: 2168 m²
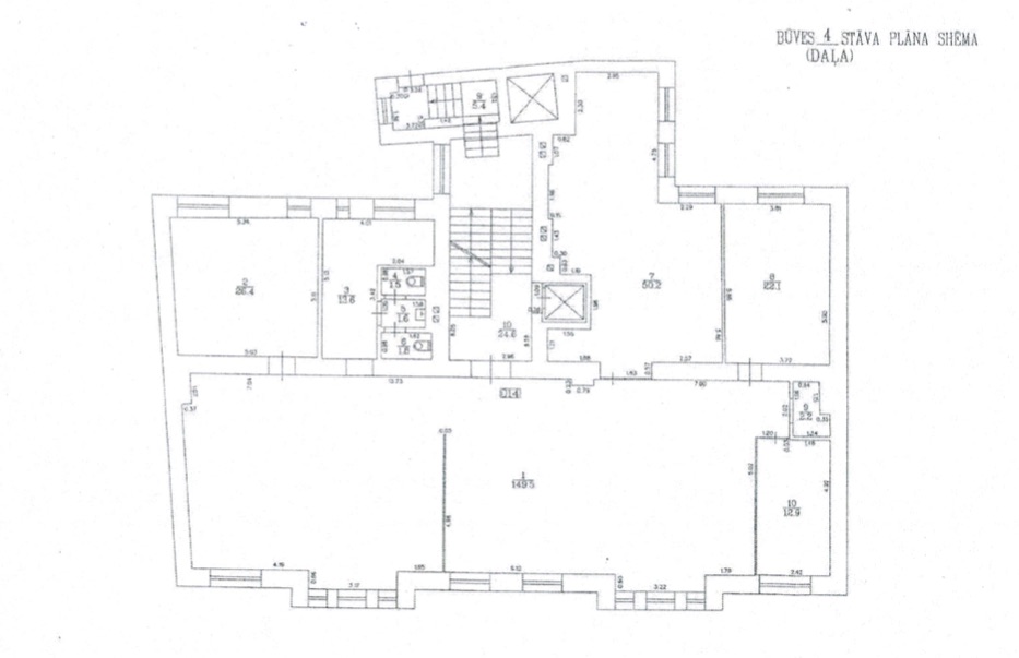
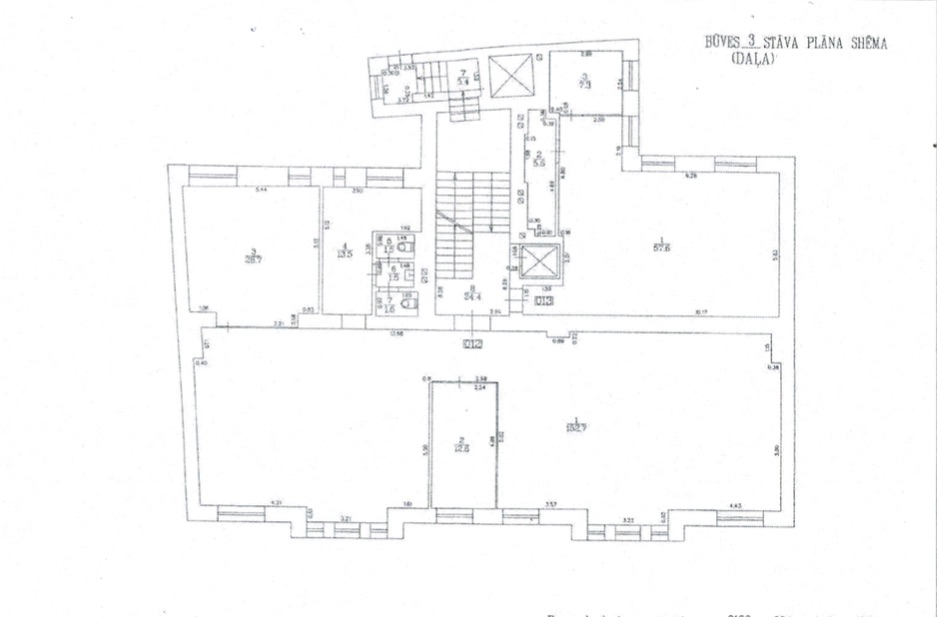
+ 3rd, 4th, 5th, and 6th floors
+ Usable area per floor: approx. 270 m²
+ Each floor consists of an open space, 4 offices, a WC, and a kitchen
+ City heating
+ Ventilation and air conditioning
+ Elevator
+ Concierge desk at the entrance
+ Video surveillance

An approved reconstruction project for creating apartments.

  • Finishing: final finishing
  • Equipment: air conditioner, air ventilation
  • Layout: premises both isolated and connected
  • Building description: with elevator
  • Parking lot: paid parking in vicinity
  • Communications: city heating
  • Security: security in person, video surveillance
Property ID number: 66117

Object on the map

  • Bing map
  • Bing bird eye
  • Openstreet Map
Edgars Regzdiņš
Edgars Regzdiņš Agent
Contact the agent:
  • Print