Office for rent, Gustava Zemgala gatve, Teika / 3185€

Location:Rīga, Labais krasts, Teika
Street:Gustava Zemgala gatve
Building type:New project
Premises:8
Floor:8/14 (ir lifts)
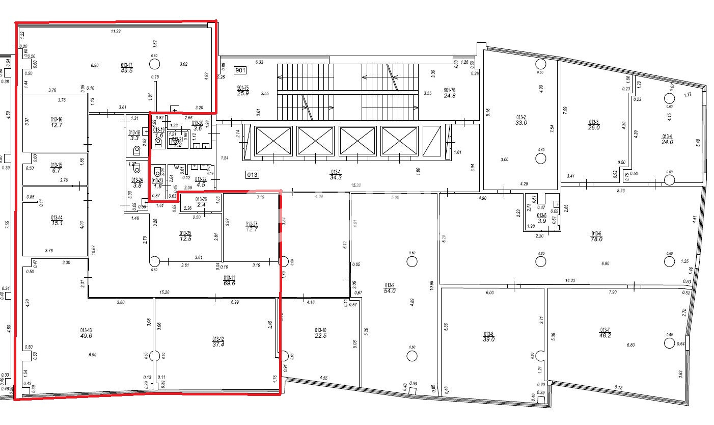
Area:290 m²
Price:3 185 € (11 €/m²)
Additional costs:management fee (2.50 €/m²); utility costs; meters; VAT (21%)
Available from:iToday

Property description

Spacious Office Available in the Valters Building — Jaunā Teika

A large office space is available in the Jaunā Teika complex, Valters building.

Current layout: open-plan office with private кабинets. Space can be customized to tenant needs.

The rent includes cosmetic renovation, replacement of lighting fixtures, and new flooring.
• Fantastic view from the windows
• Parking for employees and clients
• Convenient access by both private and public transport
• Everything nearby for comfortable work — canteens, cafés, cocktail bar, and gym
• Adjustable indoor temperature, ventilation, and air conditioning
• 24/7 security, access with electronic key cards

Parking in the multi-storey car park: 50 EUR/unit + VAT
Management fee: 2.5 EUR/m² + VAT

Floor plan attached to the photos.

Feel free to call for more detailed information.

    Property ID number: 66863

    Object on the map

    Niks Gauručs
    Niks Gauručs Agent
    Contact the agent:
    • Print