Office for rent, Ilūkstes street, Pļavnieki / 2472€
Not available

Location:Rīga, Labais krasts, Pļavnieki
Street:Ilūkstes
Building type:New project
Premises:16
Floor:1
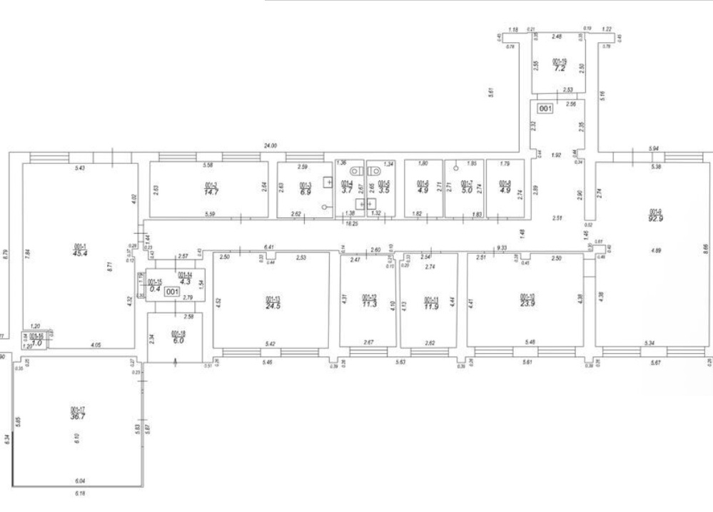
Area:309 m²
Land area:2480 m²
Price:2 472 € (8 €/m²)
Available from:iToday

Property description

Spacious commercial premises for rent in Pļavnieki – an excellent location for your business.

A 309 m² single-storey commercial building is available for rent at Ilūkstes Street 30A, on a 2480 m² land plot. The building is located in a green, well-maintained area with convenient access and developed infrastructure.

The premises are bright and cozy, with high ceilings and a well-designed layout. Suitable for a medical center, private clinic, beauty salon, SPA, rehabilitation center, office, service business, studio, shop, or other commercial activities.

Key advantages:
All city utilities;
Autonomous heating (gas boiler);
Four separate entrances;
Alarm system, fenced territory, automatic gates;
Parking on the property and on the street in front of the building;
Additional garages with metal gates;
Paved walkways;
Green and pleasant surroundings.

The building is located close to the city center, with convenient public transport and shops nearby.

Rent: 2480 EUR per month + utility payments.
Contact us to arrange a viewing and receive more information.

  • Finishing: very good condition, high quality renovation and finishing
Property ID number: 66969

Object on the map

Daniels Rene Leiguts
Daniels Rene Leiguts Agent
Contact the agent:
  • Print