Iznomā biroju, Ernestīnes iela, Āgenskalns / 599€

Atrašanās vieta:Rīga, Kreisais krasts, Āgenskalns
Iela:Ernestīnes
Ēkas tips:Renovēta māja
Telpas:2
Stāvs:3/4
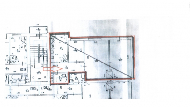
Platība:59.9 m²
Cena:599 € (10 €/m²)
Papildus maksājumi:komunālie maksājumi; skaitītāju rādījumi; PVN (21%)

Īpašuma apraksts

Kvalitatīvs birojs sakoptā biroju ēkā netālu no Kalnciema ielas.
Apsaimniekošana iekļauta nomas maksā.

Piedāvājam nomāt 59.9 m2 ēkas 3. stāvā, bez lifta.
Plānojumā 2 darba telpas + WC + virtuves telpa + ieejas halle.
Pastāv iespēja WC telpā izbūvēt dušu.

Ēkā ir TET optiskais internets.
Šim birojam tiek piešķirta 1 bezmaksas stāvvieta iežogotā pagalma stāvlaukumā.
Ir arī stāvvietas iespējas uz ielas, bezmaksas.

Elektrība, ūdens pēc skaitītājiem.
Apkure proporcionāli nomātai platībai.

Objekts tiek apsargāts, piekļuve 00-24.

  • Apdare: stāvoklis ļoti labs, gala apdare, parketa grīda
  • Aprīkojums: iebūvēta virtuve, uzstādīta santehnika
  • Plānojums: telpas gan izolētas gan caurstaigājamas
  • Ēkas raksturojums: ieeja no ēkas fasādes, pakešu logi, fasādes māja, renovēta māja
  • Atrašanās vieta: tuvumā veikali un kafejnīcas, ērta sabiedriskā transporta kustība
  • Autostāvvieta: stāvvieta pagalmā, bezmaksas stāvvieta uz ielas
  • Komunikācijas: gāzes apkure, pieejams optiskais internets, pilsētas ūdens apgāde, pilsētas kanalizācija
  • Drošība: pieejama signalizācija, slēgta kāpņu telpa, slēgta teritorija
Īpašuma ID numurs: 65560

Īpašums kartē

  • Bing karte
  • Bing bird eye
  • Openstreet Karte
Tatjana Šapošņikova
Tatjana Šapošņikova Aģents
Sazināties ar aģentu:
  • Drukāt