Iznomā biroju, Cepļa iela, Torņkalns / 323€

Atrašanās vieta:Rīga, Kreisais krasts, Pārdaugava (tuvā)
Iela:Cepļa
Ēkas tips:Renovēta pirmskara laika māja
Telpas:1
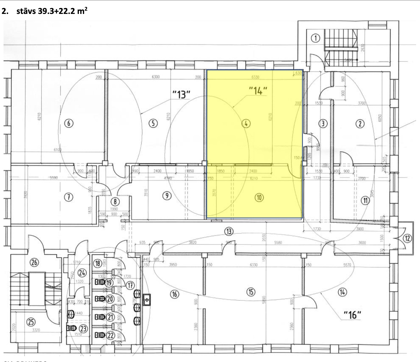
Stāvs:2/4
Platība:64.5 m²
Cena:323 € (5 €/m²)
Papildus maksājumi:apsaimniekošanas maksa (0.50 €/m²); komunālie maksājumi; skaitītāju rādījumi; PVN (21%); nekustamā īpašuma nodoklis

Īpašuma apraksts

Daudzfunkcionāla telpa Torņakalnā!

Plānojums: viena liela telpa.

+ Koplietošanas WC.
+ Teritorija apsargāta 24/7.
+ Video novērošana.
+ apsardze/signalizācija,
+ Piekļuve teritorijai līdz 22.00

Bez lifta.
Atsevišķi maksājumi:
Apkure ~ 1.5 eur/m2
Ūdens/kanalizācija 5 eur no personas
Atkritumu izvešana 15 eur/mēnesī
Elektrība pēc skaitītāja ~ 10 eur/mēn.
NĪN 0,22 eur/m2

Parkings teritorijā 30 EUR + PVN.
Parkings apmeklētājiem bez maksas.

Telpas pielietojums:
Klusas vai mierīgas aktivitātes:
- Jogas studija
- Meditācijas vai mindfulness nodarbības
- Fizioterapijas vai rehabilitācijas vingrojumi
- Elpošanas prakses telpa

Radošās un izglītojošās nodarbības:
- Mākslas, zīmēšanas vai gleznošanas meistarklases
- Keramikas vai rotu gatavošanas nodarbības
- Fotogrāfijas vai dizaina kursi
- Sociālo tīklu un digitālā mārketinga apmācības
- Valodu kursi
- Dažādas tematiskās meistarklases

Tikšanās un mazākas aktivitātes:
- Koučinga sesijas vai personīgā attīstība grupās
- Psihoterapeitu grupu nodarbības
- Mazie semināri, lekcijas vai prezentācijas
- Darbnīcas uzņēmumu komandām (team-building)
- Pop-up showroom

  • Apdare: tikko pēc kosmētiskā remonta, gala apdare, lamināta grīda
  • Ēkas raksturojums: ieeja no ēkas fasādes, pakešu logi, pagalma māja, specprojekta māja, renovēta māja
  • Atrašanās vieta: ērta sabiedriskā transporta kustība
  • Autostāvvieta: stāvvieta pagalmā, bezmaksas stāvvieta uz ielas
  • Komunikācijas: autonoms apkures katls, pieejams internets
  • Drošība: pieejama signalizācija, videonovērošana
Īpašuma ID numurs: 66278

Īpašums kartē

  • Bing karte
  • Bing bird eye
  • Openstreet Karte
Dace Levčenko
Dace Levčenko Aģents
Sazināties ar aģentu:
  • Drukāt