Iznomā biroju, Stigu iela, Mežciems / 6264€

Atrašanās vieta:Rīga, Labais krasts, Mežciems
Iela:Stigu
Ēkas tips:Jaunais projekts
Telpas:13
Stāvs:2/4 (ir lifts)
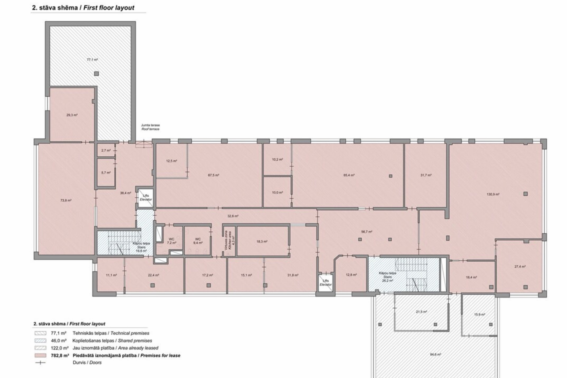
Platība:783 m²
Cena:6 264 €

Īpašuma apraksts

Piedāvājumā 783m2 biroja telpas modernā ēkā Stigu ielā 10!

Biroja telpas atrodas otrajā stāvā. Sastāv no vairākiem kabinetiem, atvērtas telpas, privātas terases savas virtuves un sanmezgliem.

Nomas maksā iekļauta pilnvērtīgs telpu kosmētiskais remonts.

Telpās ir vēdināšana, kondicionēšana, uzstādīta ugunsdrošības signalizācija, lifts. Uz fasādes iespējams izvietot nomnieka logo.

Papildus komunālie maksājumi pēc skaitītājiem. Asaimniekošanas maksai ir "open book" princips jeb maksā tikai par reāliem izdarītajiem darbiem proporcionāli iznomātajai platībai.

Bezmaksas autostāvvietas īpašuma pagalmā, kā arī uz pieguļošās Stigu ielas.

Droši zvaniet un sniegšu sīkāku informāciju.

    Īpašuma ID numurs: 66508

    Īpašums kartē

    • Bing karte
    • Bing bird eye
    • Openstreet Karte
    Niks Gauručs
    Niks Gauručs Aģents
    Sazināties ar aģentu:
    • Drukāt