Iznomā biroju, Vienības gatve, Ziepniekkalns / 340€

Atrašanās vieta:Rīga, Kreisais krasts, Torņkalns
Iela:Vienības gatve
Ēkas tips:Specprojekts
Telpas:1
Stāvs:2/2
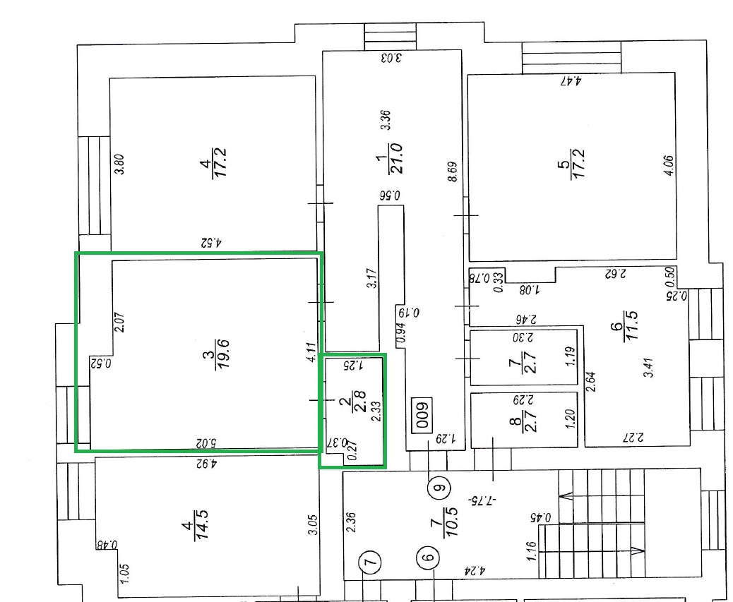
Platība:22.4 m²
Cena:340 € (15.2 €/m²)
Papildus maksājumi:komunālie maksājumi; PVN (21%); nekustamā īpašuma nodoklis
Minimālais īres termiņš:12 mēneši
Pieejams no:iŠodienas

Īpašuma apraksts

Birojs ar savu privāto sanmezglu kabinetā.

Platība: 22.4 m²

Telpas apraksts:
+ Kondicionieris
+ Izlietne telpā
+ Ieeja 24/7

Priekšrocības:
+ Autostāvvieta slēgtā pagalmā
+ Laba infrastruktūra
+ Ērta sabiedriskā transporta pieejamība
+ Tuvumā Rimi un Maxima

Izmaksas:
- Nomas maksa: 340 EUR + PVN
- Nekustamā īpašuma nodoklis: ~20 EUR (pēc m²)
- Elektrība – pēc patēriņa

Telpa piemērota biroja darbībai vai individuālam darba kabinetam.

Sazinieties, lai vienotos par apskates laiku!

    Īpašuma ID numurs: 66668

    Īpašums kartē

    • Bing karte
    • Bing bird eye
    • Openstreet Karte
    Dace Levčenko
    Dace Levčenko Aģents
    Sazināties ar aģentu:
    • Drukāt