Iznomā biroju, Ilūkstes iela, Pļavnieki / 3300€

Atrašanās vieta:Rīga, Labais krasts, Pļavnieki
Iela:Ilūkstes
Ēkas tips:Jaunais projekts
Telpas:16
Stāvs:1
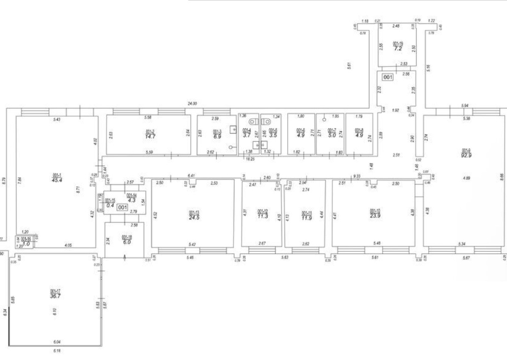
Platība:309 m²
Zemes platība:2480 m²
Cena:3 300 € (10.7 €/m²)
Pieejams no:iŠodienas

Īpašuma apraksts

Plašas komerctelpas nomai Pļavniekos – lieliska vieta jūsu biznesam.

Iznomā 309 m² lielu vienstāva komerciālo ēku Ilūkstes ielā 30A, uz 2480 m² plaša zemes gabala. Ēka atrodas zaļā, sakoptā teritorijā ar ērtu piekļuvi un attīstītu infrastruktūru.

Telpas ir gaišas, mājīgas, ar augstiem griestiem un pārdomātu plānojumu. Tās piemērotas medicīnas centram, privātklīnikai, skaistumkopšanas salonam, SPA, rehabilitācijas centram, birojam, pakalpojumu sniegšanai, studijai, veikalam vai citām uzņēmējdarbības vajadzībām.

Galvenās priekšrocības:
Visas pilsētas komunikācijas;
Autonomā apkure (gāzes katls)
Četras atsevišķas ieejas;
Signalizācija, teritorija iežogota, automātiskie vārti;
Autostāvvieta teritorijā un uz ielas ēkas priekšā;
Papildu garāžas ar metāla vārtiem;
Bruģēti celiņi;
Zaļa un patīkama apkārtne;

Ēka atrodas netālu no pilsētas centra, ar ērtu sabiedriskā transporta satiksmi un veikaliem tuvumā.

Īres maksa: 3300 EUR mēnesī + komunālie maksājumi.
Sazinieties, lai vienotos par apskati un saņemtu papildu informāciju.

    Īpašuma ID numurs: 66725

    Īpašums kartē

    • Bing karte
    • Bing bird eye
    • Openstreet Karte
    Daniels Rene Leiguts
    Daniels Rene Leiguts Aģents
    Sazināties ar aģentu:
    • Drukāt