Iznomā biroju, Valguma iela, Āgenskalns / 1637€

Atrašanās vieta:Rīga, Kreisais krasts, Pārdaugava (tuvā)
Iela:Valguma
Ēkas tips:Specprojekts
Telpas:3
Stāvs:3/4
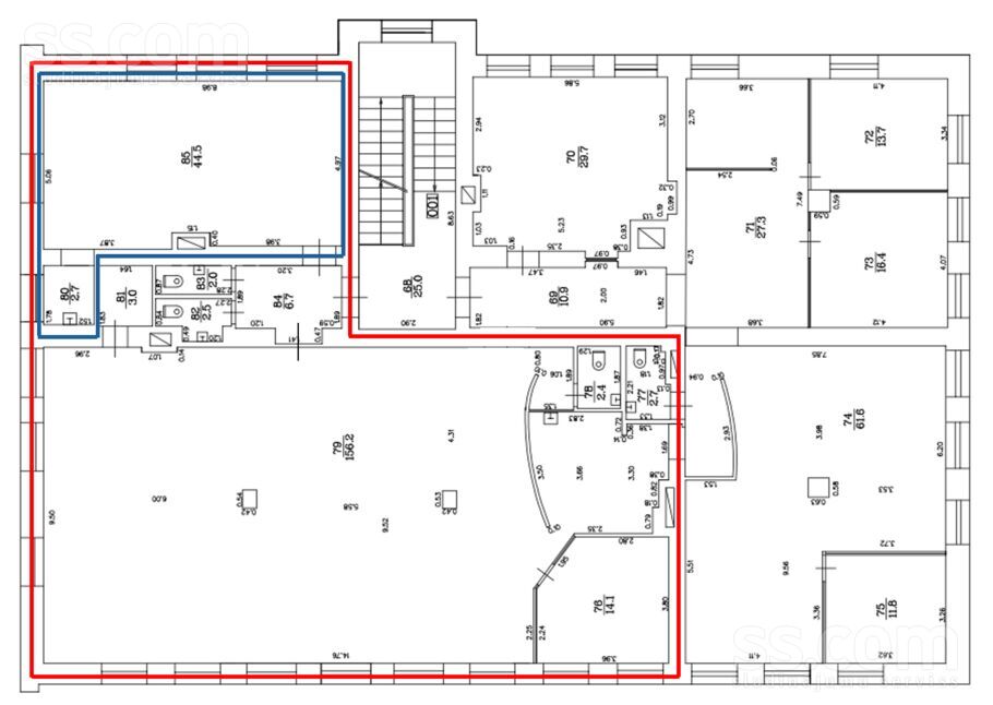
Platība:234 m²
Cena:1 637 € (7 €/m²)
Papildus maksājumi:apsaimniekošanas maksa (1.00 €/m²); komunālie maksājumi; PVN (21%)

Īpašuma apraksts

Birojs Pārdaugavā, pretī "Gaismas pils" bibliotēkai.

Platība sastāv no vienas lielas telpas (140 kvm), kabineta, kas nodalīts ar stikla sienu, virtuves un 2 WC.
Otra biroja daļa sastāv no vienas vidēji lielas telpas (44 kvm), virtuvītes, priekštelpas un 2 WC.
Iespēja nomāt tikai vienu biroja daļu.

Atsevišķa ieeja no kāpņu telpas.
Iespējama telpu pārbūve atbilstoši nomnieka vajadzībām.

Ēka renovēta, tai ir augsta energoefektivitāte. Zemas apkures izmaksas, 2026.gada februārī bija zem 2 eur/kvm.
Dubultās logu stikla paketes.
Gaisa kondicionieris.

Pie ēkas ērta autostāvvieta - nomas maksā iekļautas 2 vietas, papildus vietas par 40 eur/mēn.
Perfekta ēkas lokācija, ātri sasniedzama jebkura pilsētas daļa.
Apsaimniekošanas maksa 1 eur/kvm.
Komunālo pakalpojumu rēķins februārī 504 eur.

  • Apdare: remonts taisīts pēdējo 2-3 gadu laikā
  • Aprīkojums: iebūvēta virtuve, gaisa kondicionētājs
  • Plānojums: atvērta tipa plānojums
  • Ēkas raksturojums: namrunis, pakešu logi
  • Atrašanās vieta: tuvumā upe, ērta sabiedriskā transporta kustība, liela autobraucēju plūsma
  • Autostāvvieta: stāvvieta pagalmā
  • Komunikācijas: gāzes apkure
  • Drošība: pieejama signalizācija, slēgta kāpņu telpa, videonovērošana
Īpašuma ID numurs: 67223

Īpašums kartē

Ivars Blanks
Ivars Blanks Aģents
Sazināties ar aģentu:
  • Drukāt