Pārdod biroju, Vienības gatve, Ziepniekkalns / 1100000€

Atrašanās vieta:Rīga, Kreisais krasts, Ziepniekkalns
Iela:Vienības gatve
Ēkas tips:Jaunais projekts
Telpas:30
Platība:1275 m²
Zemes platība:1943 m²
Cena:1 100 000 € (862.8 €/m²)

Īpašuma apraksts

Biroja ēka ērtā, zaļā un pieprasītā vietā.

Ēka šobrīd tiek izmantota kā biroja ēka. Reizē nākotnē tā piedāvā vairākus attīstības virzienus:

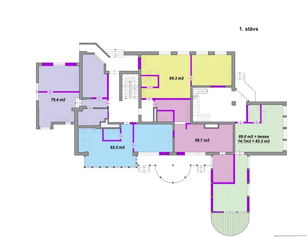
1. 10-12 dzīvokļu izbūve ar labiem plānoumiem (Skatīt skiču projekta plānus pēdējās sludinājuma bildēs)
2. Izmantot kā biroja ēku un gūt ienākumus (šī brīža izmantošana)
3. Pielāgot savai uzņēmējdarbībai

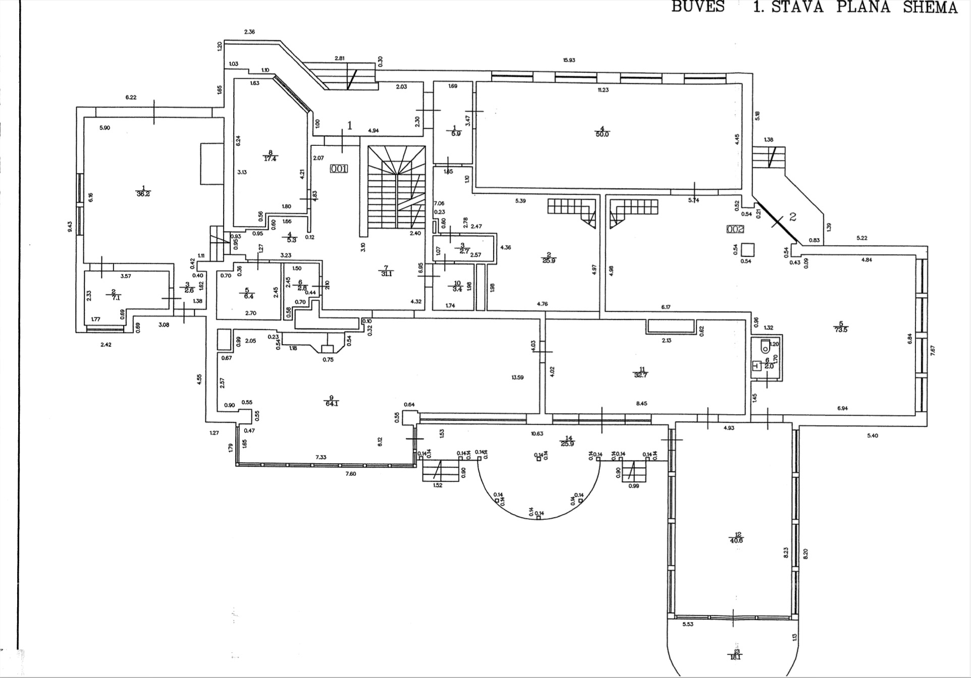
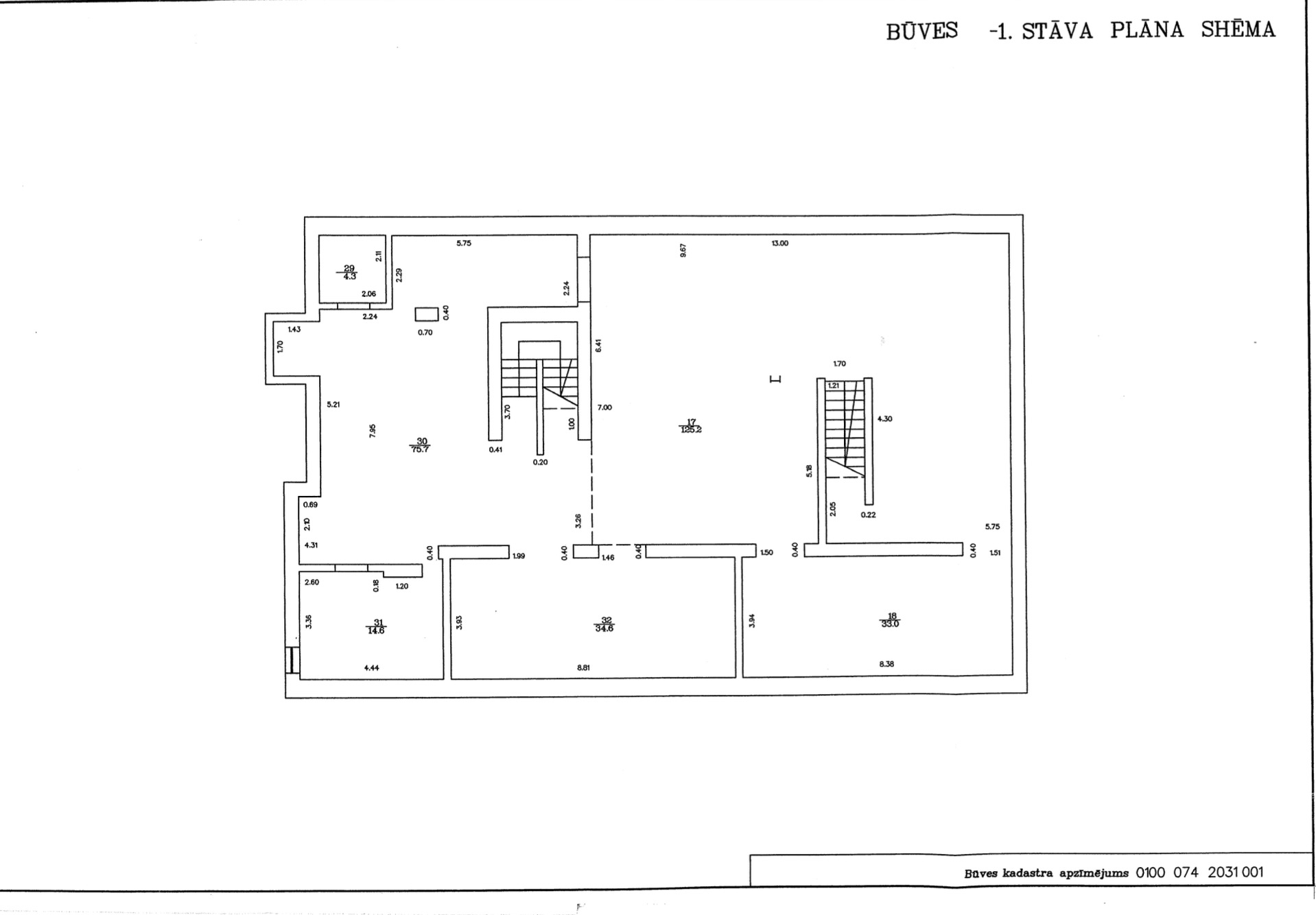
Platības:

1. stāvs – 410 m²
2. stāvs – 350 m²
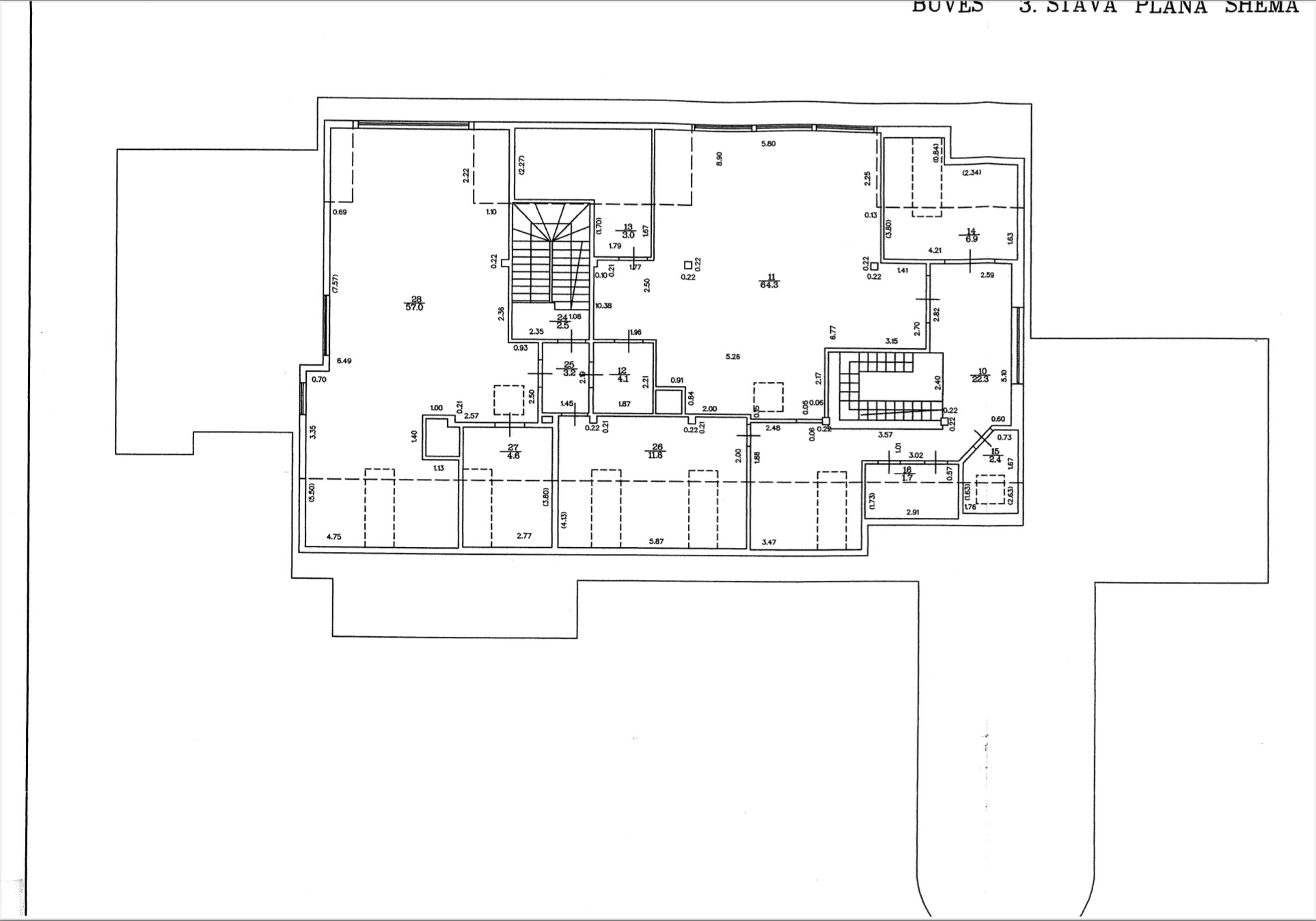
3. stāvs – 184 m²
Puspagrabs – 287 m²
Terase – 44 m²
Zemes platība – 1 943 m²

Īpašuma raksturojums:

+ Fundamentāla būve: mūra sienas, dzelzsbetona pārsegumi, metāla jumts;
+ Pilsētas centrālās komunikācijas, gāze, jaudīga elektroapgāde;
+ Ēka nodota ekspluatācijā 2005. gadā;
+ Dokumentāli – divu dzīvokļu ēka (694 m² un 580 m²);
+ Ērta piebraukšana pa asfaltētu ceļu no Vienības gatves;
+ 20 autostāvvietas;
+ 600 m² plašs, zaļš pagalms ar zālāju;

Zonējums: JC2

    Īpašuma ID numurs: 65986

    Īpašums kartē

    • Bing karte
    • Bing bird eye
    • Openstreet Karte
    Egils Skujiņš
    Egils Skujiņš Aģents
    Sazināties ar aģentu:
    • Drukāt