Pārdod dzīvokli, Ainažu iela 25, Saulkrasti / 125000€

Atrašanās vieta:Rīga, Saulkrastu novads, Saulkrasti
Iela:Ainažu 25
Ēkas tips:Jaunais projekts
Mēbeles:Mēbelēts
Istabas:2
Stāvs:2/5
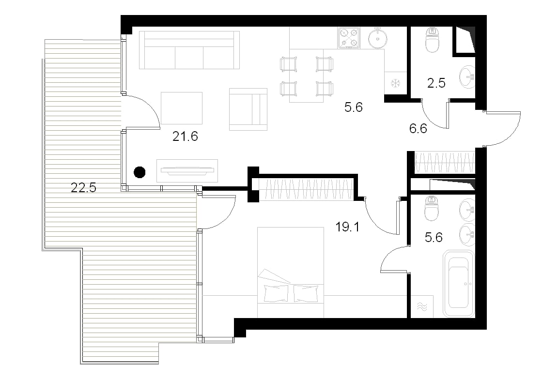
Platība:79.5 m²
Cena:125 000 € (1 572.3 €/m²)
Papildus maksājumi:komunālie maksājumi

Īpašuma apraksts

Pārdod elegantu 2-istabu dzīvokli ar plašu terasi jūras tuvumā, Saulkrastos

Tiek piedāvāts moderns un komfortabls 2-istabu dzīvoklis ar 17,1 m² terasi, kas atrodas tikai pāris soļu attālumā no jūras – klusā, zaļā un ekoloģiski tīrā vidē Saulkrastos. Šī ir lieliska iespēja tiem, kuri vēlas baudīt mieru, komfortu un dabas tuvumu, nezaudējot saikni ar pilsētas ērtībām.

Dzīvoklis ir gaumīgi un kvalitatīvi iekārtots priekš sevis – apdarei izmantoti augstvērtīgi apdares materiāli.
Uzstādīts kondicionieris, parketa grīdas, mūsdienīga virtuves iekārta ar trauku mašīnu, cepeškrāsni, veļas mašīna. Guļamistabā atrodas plašs iebūvētais skapis.

Plānojums: dzīvojamā istaba apvienota ar virtuvi, guļamistaba, vannas istaba, viesu WC un plaša terase, kas vasarā paplašina dzīvojamo telpu un ļaujot baudīt āra mieru un sauli.
Papildus ērtība – pazemes autostāvvieta ir iekļauta cenā.

Ēka ir jauna, celta ar visām mūsdienu prasībām atbilstošu infrastruktūru. Apkārtējā vide ir mierīga, bet vienlaikus piedāvā daudz iespēju aktīvai atpūtai – dabas takas, makšķerēšana, laivu noma, SUP dēļi, jūra un mežs rokas stiepiena attālumā.

Saulkrasti ir ideāla vieta tiem, kas strādā Rīgā, bet vēlas dzīvot zaļā, mierpilnā piejūras vidē, baudot līdzsvaru starp darbu un atpūtu.

  • Apdare: stāvoklis ļoti labs, augstvērtīgs remonts un apdare, parketa grīda
  • Aprīkojums: daļēji mēbelēts, uzstādīta santehnika, siltās grīdas vannasistabā, vanna, balkons/lodžija, terase
  • Plānojums: atvērta tipa plānojums, istabas gan izolētas gan caurstaigājamas
  • Ēkas raksturojums: namrunis, jaunais projekts
  • Atrašanās vieta: tuvumā jūra, tuvumā parks, tuvumā veikali un kafejnīcas, ērta sabiedriskā transporta kustība
  • Autostāvvieta: pazemes autostāvvieta
  • Komunikācijas: gāzes apkure, pieejams internets
  • Drošība: dzīvā apsardze, slēgta kāpņu telpa
Īpašuma ID numurs: 66128

Īpašums kartē

  • Bing karte
  • Bing bird eye
  • Openstreet Karte
Dainis Sperga
Dainis Sperga Aģents
Sazināties ar aģentu:
  • Drukāt