Investīciju objekts, Amālijas iela, Āgenskalns / 260000€
Nav pieejams!

Atrašanās vieta:Rīga, Kreisais krasts, Āgenskalns
Iela:Amālijas
Platība:1209 m²
Cena:260 000 € (215.1 €/m²)

Īpašuma apraksts

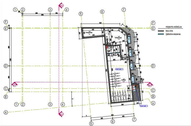
Piedāvājumā pašā Āgenskalna centrā īpašums ar attīstības iespējām. Zemes gabals ar kopējo platību 1209 m2. Tas tiek pārdots ar izstrādātu, saskaņotu un aptiprinātu dzīvokļu ēkas projektu.
Projekts paredz vienas mājas atjaunošanu no nulles un vienu jaunbūvi.
Kopā 14 dzīvokļi.
Astoņi divu istabu dzīvokļi;
Pieci trīs istabu dzīvokļi;
Viens četru istabu dzīvoklis ar plašu terasi.
Projekta kopējā platība 1096,27 m2;
Projekta lietderīgā platība 919,02
Detalizētāka informācija pēc pieprasījuma.

  • Atrašanās vieta: tuvumā veikali un kafejnīcas, tuvumā skolas un bērnudārzi, ērta sabiedriskā transporta kustība
  • Komunikācijas: gāzes apkure, pilsētas ūdens apgāde, pilsētas kanalizācija
Īpašuma ID numurs: 53547

Īpašums kartē

  • Bing karte
  • Bing bird eye
  • Openstreet Karte
Anna Gelderiņa
Anna Gelderiņa Aģents
Sazināties ar aģentu:
  • Drukāt