Investīciju objekts, Brīvības iela, Teika / 625000€

Atrašanās vieta:Rīga, Labais krasts, Teika
Iela:Brīvības
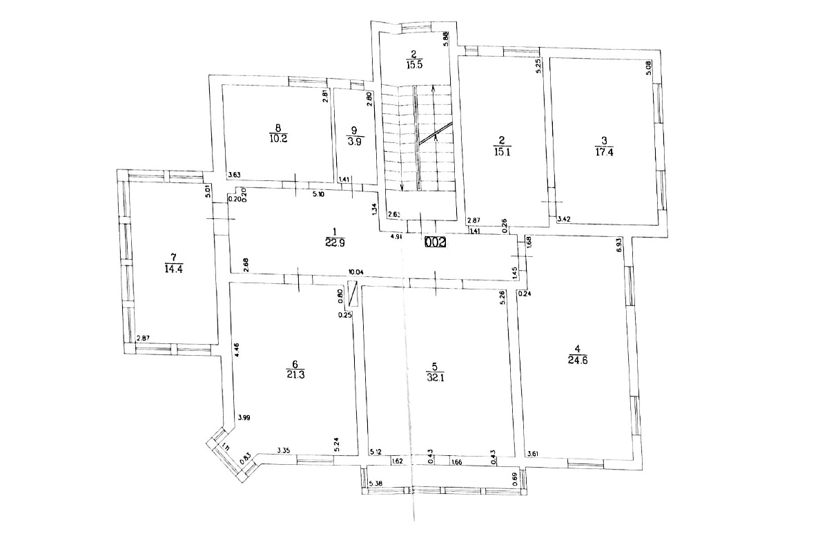
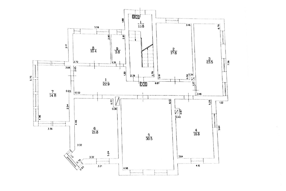
Platība:439 m²
Zemes platība:1423 m²
Cena:625 000 € (1 423.7 €/m²)
Ienesīgums:8.3 %

Īpašuma apraksts

Naudas plūsmas objekts – biroju ēka, kas šobrīd pārbūvēta un pilnībā funkcionē kā īstermiņa īres dzīvokļu projekts.

Objekts nodrošina stabilus ieņēmumus vairāku gadu garumā ar pierādāmu naudas plūsmu.

Prognozējamais ienesīgums ap 8% gadā, ņemot vērā īstermiņa īres pārvaldīšanas izmaksas un regulāros kapitālieguldījumus (CAPEX).

+ plaša autostāvvieta;
+ 2020. gadā renovēta, t.sk, siltināta fasāde;
+ jauna apkures sistēma (Rīgas siltums);
+ plašs, labiekārtots pagalms auto novietošanai;
+ gaisa kondicionieri;
+ parketa grīdas un koka pakešu logi;
+ piebraukšana no Ropažu ielas puses (gar VEF Kultūras pili);
+ ērta nokļūšana uz Rīgas centru gan ar privāto, gan sabiedrisko transportu.

  • Apdare: gala apdare, parketa grīda
  • Aprīkojums: iebūvēta virtuve, uzstādīta santehnika, duša, veļas mašīna, gaisa kondicionētājs
  • Plānojums: vannasistaba un wc kopā, visas telpas izolētas
  • Ēkas raksturojums: koka pakešu logi, fasādes māja, renovēta māja
  • Atrašanās vieta: tuvumā veikali un kafejnīcas, ērta sabiedriskā transporta kustība, liela gājēju plūsma, liela autobraucēju plūsma
  • Autostāvvieta: stāvvieta pagalmā, bezmaksas autostāvvieta
  • Komunikācijas: pilsētas apkure, pieejams internets, pieejama televīzija, pilsētas ūdens apgāde, pilsētas kanalizācija
  • Drošība: pieejama signalizācija, koda atslēga, slēgts pagalms
Īpašuma ID numurs: 66763

Īpašums kartē

Jānis Lipša
Jānis Lipša Aģents
Sazināties ar aģentu:
  • Drukāt