Pārdod māju, Dzintaru iela, Berģi / 329000€

Atrašanās vieta:Rīga, Labais krasts, Berģi
Iela:Dzintaru
Istabas:5
Platība:198 m²
Zemes platība:603 m²
Cena:329 000 € (1 661.6 €/m²)

Īpašuma apraksts

JAUNA, ENERGOEFEKTĪVA MĀJA BERĢOS!

Pārdošanas cena atbilst vērtējuma cenai!

Kvalitatīvi būvēta, energoefektīva un ekspluatācijā nodota māja!

Puse no dvīņu mājas.
Mierīgā un sakoptā privātmāju rajonā Berģu ciematā.
Ar pilnībā nodalītu teritoriju un komunikācijām, nodrošinot pilnvērtīgu privātmājas sajūtu.

Īpašuma raksturojums:
Zemesgabals (atsevišķā lietošanā) – 603 m²
Dzīvojamā platība – 135 m²
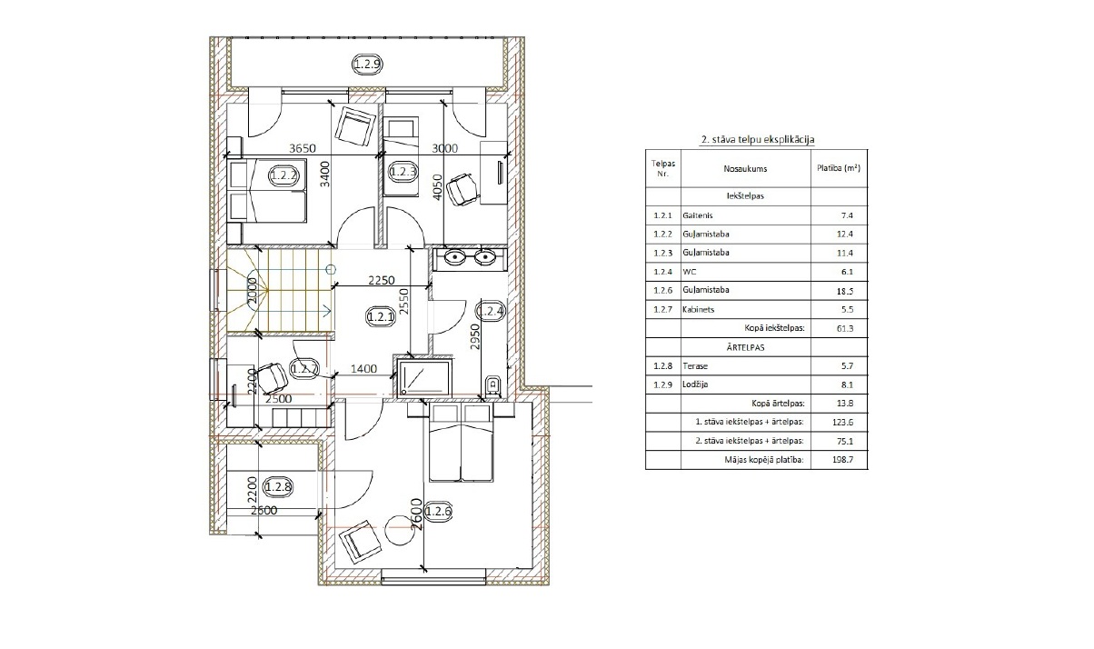
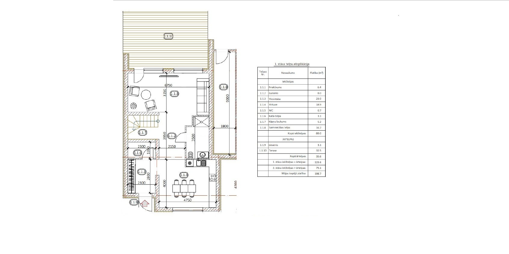
Kopējā platība – 198,7 m²

Būvniecība un tehniskie risinājumi:
+ Mūra konstrukcijas māja
+ Dzelzsbetona pārsegumi
+ A+ energoefektivitāte
+ Apkure – siltumsūknis (gaiss–ūdens)
+ Parketa grīdas segums
+ Siltās grīdas visā mājā abos stāvos
+ Centralizētā rekuperācijas sistēma
+ Ūdens - atsevišķa spice
+ Kanalizācija - bioloģiskā (atsevišķa)
+ Nožogota un apzaļumota teritorija
+ Bruģēts pagalms
+ Automātiski iebraucamie vārti

Plānojums:
1. stāvs
+ Priekšnams
+ Plaša dzīvojamā istaba
+ Virtuve
+ Plašs koridors
+ Katlu telpa
+ Vannas istaba.

2. stāvs
+ Trīs guļamistabas
+ Vannas istaba
+ Atsevišķa telpa ar logu – piemērota kabinetam vai garderobei
+ 3 balkoni

Ārtelpas:
+ Plaša terase
+ Mantu glabātava

Klusa, ģimenēm draudzīga vide.
Privātmāju zona, blakus mežs.
Līdz sabiedriskā transporta pieturai 12 minūšu pastaigas attālums.
Ideāla izvēle tiem, kas novērtē kvalitatīvu būvniecību, energoefektivitāti un mierīgu dzīves vidi netālu no Rīgas.

Sazinieties, lai vienotos par apskates laiku un saņemtu papildu informāciju.

  • Apdare: augstvērtīgs remonts un apdare, parketa grīda
  • Aprīkojums: uzstādīta santehnika, duša, apsildāmās grīdas, balkons/lodžija, terase
  • Plānojums: istabas gan izolētas gan caurstaigājamas
  • Ēkas raksturojums: dvīņumāja
  • Atrašanās vieta: tuvumā mežs
  • Komunikācijas: siltumsūknis
Īpašuma ID numurs: 67072

Īpašums kartē

Dace Levčenko
Dace Levčenko Aģents
Sazināties ar aģentu:
  • Drukāt