Iznomā namīpašumu, Lāčplēša iela iela, Centrs / 2400€

Atrašanās vieta:Rīga, Labais krasts, Centrs
Iela:Lāčplēša iela
Mēbeles:Nemēbelēts
Stāvs:3/6
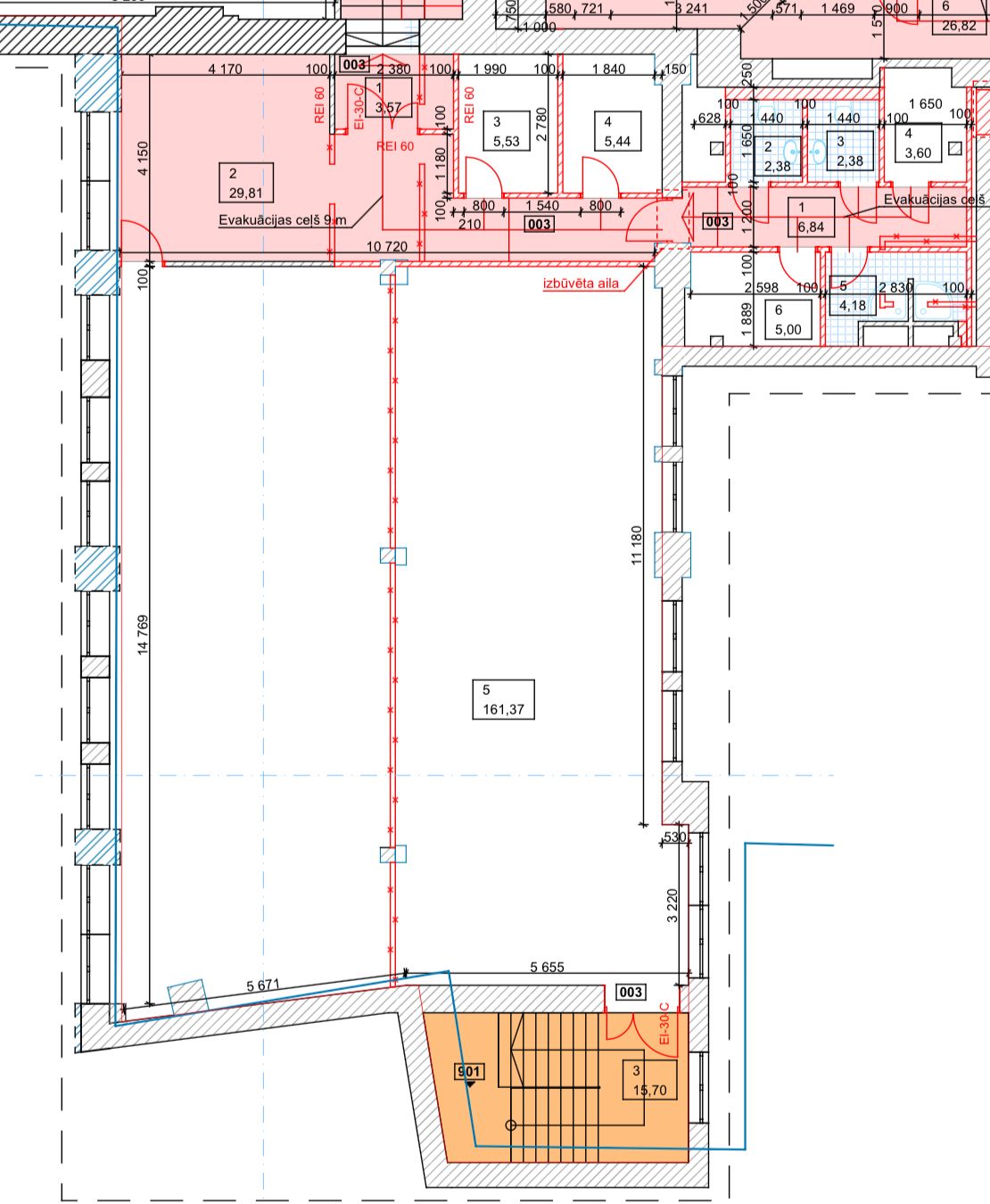
Platība:240 m²
Cena:2 400 € (10 €/m²)
Papildus maksājumi:apsaimniekošanas maksa; komunālie maksājumi; skaitītāju rādījumi; PVN (21%); nekustamā īpašuma nodoklis
Pieejams no:iŠodienas

Īpašuma apraksts

Saulaina sporta vai deju zāle pilsētas centra tuvumā!

Plānojums:
+2 ieejas;
+Sporta zāle 161 m²;
+2 ģērbtuves;
+2 dušas telpas;
+4 WC;

+Ēkai ir savs centralizēts apkures katls.
+Pieejams kravas lifts.

Ar prieku atbildēšu uz jautājumiem un izrādīšu telpas klātienē!

  • Apdare: nepieciešams kosmētiskais remonts
  • Aprīkojums: uzstādīta santehnika, gaisa ventilācija
  • Ēkas raksturojums: pakešu logi
  • Atrašanās vieta: tuvumā veikali un kafejnīcas, ērta sabiedriskā transporta kustība, liela gājēju plūsma, liela autobraucēju plūsma
  • Autostāvvieta: maksas (Rīgas satiksmes) stāvvieta uz ielas
  • Komunikācijas: pilsētas ūdens apgāde, pilsētas kanalizācija
  • Drošība: videonovērošana
Īpašuma ID numurs: 66980

Īpašums kartē

Edgars Freimanis
Edgars Freimanis Aģents
Sazināties ar aģentu:
  • Drukāt