Iznomā noliktavu, Rātsupītes iela, Babītes novads / 12363€

Atrašanās vieta:Rīga, Kreisais krasts, Iļģuciems
Iela:Rātsupītes
Ēkas tips:Jaunais projekts
Stāvs:1/2
Platība:1902 m²
Cena:12 363 € (6.5 €/m²)
Papildus maksājumi:apsaimniekošanas maksa (0.50 €/m²); komunālie maksājumi; PVN (21%); nekustamā īpašuma nodoklis
Pieejams no:iŠodienas

Īpašuma apraksts

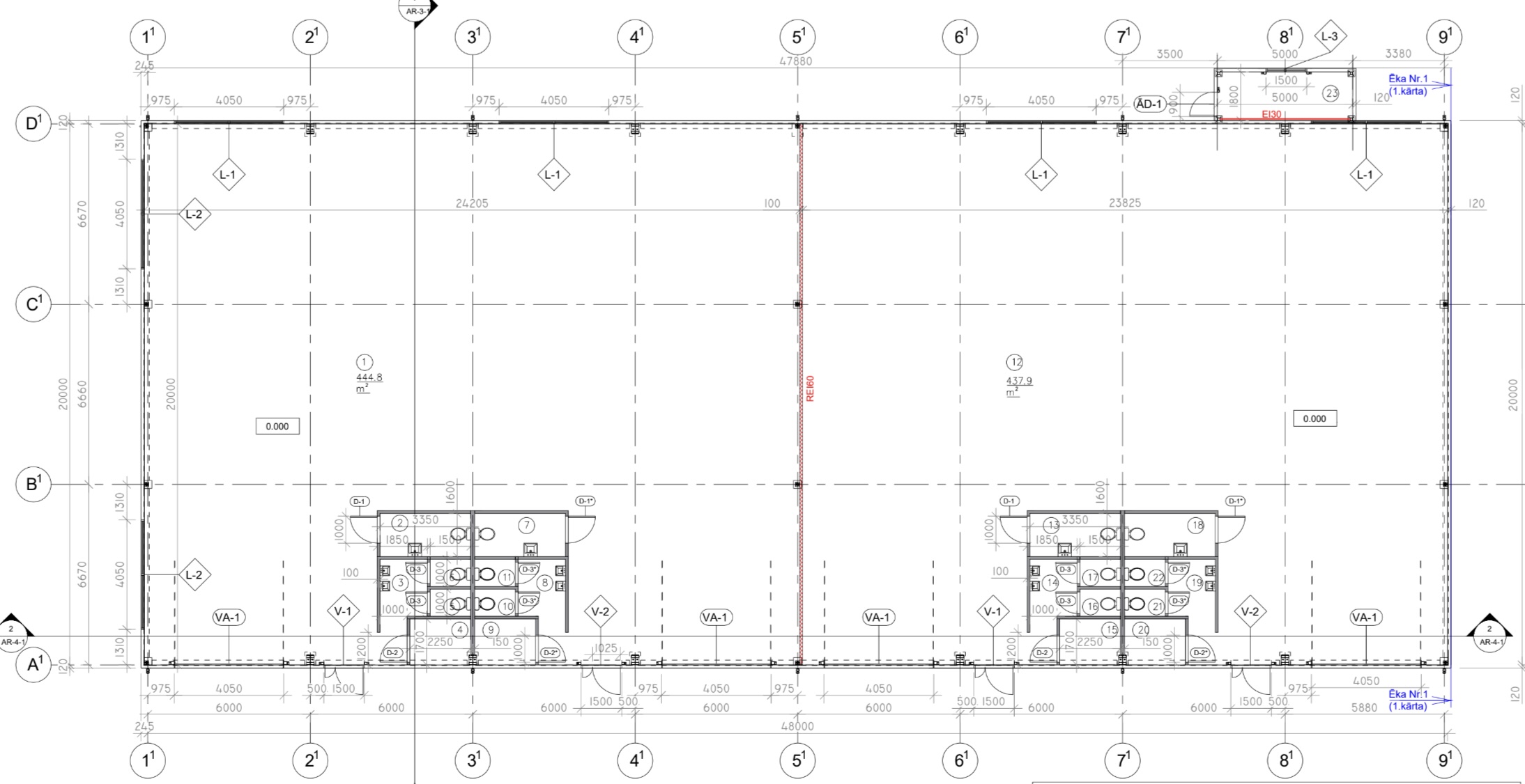
Jauna noliktavas / biroja ēka
Iznomā divas blakus esošas ēkas.

Raksturojums:

Katra ēka sastāv no noliktavas telpām 878 m² platībā; telpa sadalīta uz pusēm ar ugunsdrošo sienu, iespējams izbūvēt ailu vai vārtus;

Katrā ēkā biroja telpas, palīgtelpas un WC 73 m² platībā;

Griestu augstums līdz pārsegumam: no 5,2 m līdz 6,6 m;

Atsevišķa ieeja no stiklotas fasādes;

Četri paceļamie vārti (4 × 4,5 m);

Regulējama apkures sistēma – gaisa pūtēji (gāzes katls);

Plaša, asfaltēta teritorija;

Autostāvvieta;

200 A elektrības pieslēgums, ar iespēju palielināt jaudu pēc nepieciešamības.

Papildu izmaksas:

Apsaimniekošanas maksa – 0,50 EUR/m²;

Nekustamā īpašuma nodoklis – 0,11 EUR/m².

    Īpašuma ID numurs: 65828

    Īpašums kartē

    • Bing karte
    • Bing bird eye
    • Openstreet Karte
    Edgars Regzdiņš
    Edgars Regzdiņš Aģents
    Sazināties ar aģentu:
    • Drukāt