Iznomā noliktavu, Daugavgrīvas iela, Pārdaugava (tuvā) / 2250€

Atrašanās vieta:Rīga, Kreisais krasts, Āgenskalns
Iela:Daugavgrīvas
Ēkas tips:Jaunais projekts
Stāvs:1/1
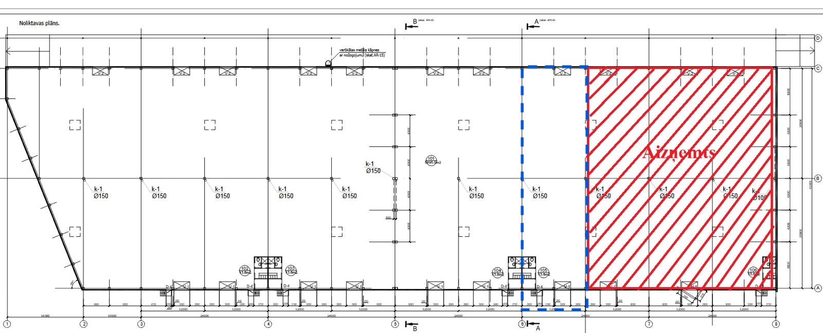
Platība:500 m²
Cena:2 250 € (4.5 €/m²)
Papildus maksājumi:apsaimniekošanas maksa (0.70 €/m²); komunālie maksājumi; skaitītāju rādījumi; PVN (21%); nekustamā īpašuma nodoklis
Pieejams no:iŠodienas

Īpašuma apraksts

Noliktavas Daugavgrīvas ielā ar apkuri.

Fasādes ēka, ērta piekļuve no Daugavgrīvas un Tvaikoņu ielām.
Moderna ēka ar visām mūsdienu prasībām atbilstošām komunikācijām.
Iežogota teritorija, dzīvā apsardze 00-24.

Lietderīgais griestu augstums 6.50 m.
Individuāla gāzes apkure, laba betona grīda.
Noliktavai ir 1 rampa kravas a/m.
Izbūvēti sanitārie boks ar WC, neliels darba kabinets.

Pieejami biroji sākot no 140 m2 līdz 600 m2.

Apsaimniekošana 0.70 centi/m2.
Noliktavai 4.50 EUR/m2.
Nekustamā īpašuma nodoklis 0.25 EUR/m2.
Maksa par noliktavas telpu apkuri apkures sezonā 2.60 EUR/gāzes m3.
Fiksētā maksa par gāzes sadali 0.07 EUR/m2.
Maksa par patērēto ūdeni un kanalizāciju noliktavās 3.54 EUR/ūdens m3.
Maksa par elektroenerģiju 0.31 EUR/KWt.

  • Apdare: stāvoklis ļoti labs, gala apdare, betona grīda
  • Plānojums: brīvais plānojums (nav starpsienu)
  • Ēkas raksturojums: jaunais projekts
  • Atrašanās vieta: tuvumā veikali un kafejnīcas, ērta sabiedriskā transporta kustība, liela autobraucēju plūsma
  • Autostāvvieta: stāvvieta pagalmā
  • Komunikācijas: gāzes apkure, liela elektrības jauda, pilsētas ūdens apgāde, pilsētas kanalizācija
  • Drošība: pieejama signalizācija, dzīvā apsardze, slēgta teritorija, videonovērošana
Īpašuma ID numurs: 67178

Īpašums kartē

Tatjana Šapošņikova
Tatjana Šapošņikova Aģents
Sazināties ar aģentu:
  • Drukāt