Iznomā ražošanas telpas, Starta iela, Čiekurkalns / 1600€

Atrašanās vieta:Rīga, Labais krasts, Čiekurkalns
Iela:Starta
Ēkas tips:Specprojekts
Stāvs:2/4
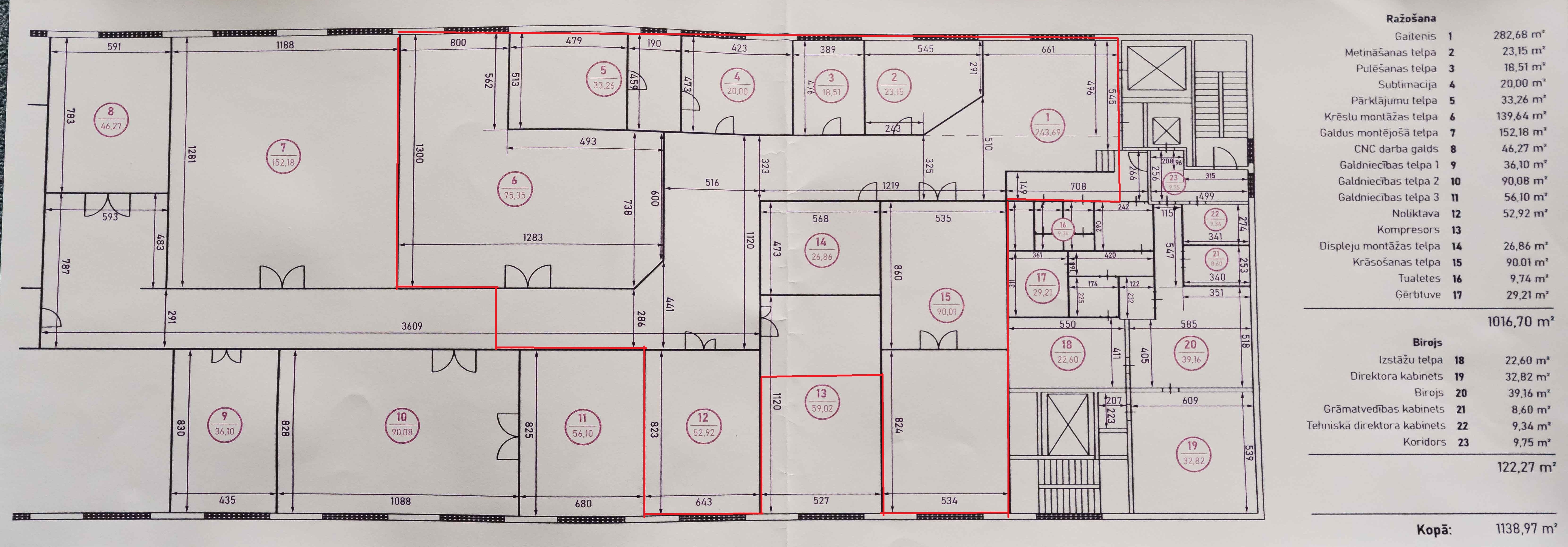
Platība:450 m²
Cena:1 600 € (3.6 €/m²)
Papildus maksājumi:apsaimniekošanas maksa (0.70 €/m²); komunālie maksājumi; PVN (21%)
Drošības depozīts:0 €
Pieejams no:iŠodienas

Īpašuma apraksts

Apsildāmas ražošanas vai noliktavas telpas 2.stāvā.

Ēka celta 1994.gadā pēc somu projekta.
Kravas lifts 3.5t, izmēri 3x3x2m platumā.
Rampa nav.
Griestu augstums 5.70 m.
Esošās reģipša starpsienas iespējams demontēt.

Pilsētas apkure.
Elektrības jaudas lielas, 3 fāzes.
Tualete.
Pieejamas arī dažāda izmēra biroja telpas blakus.

Plašas autostāvvietas iespējas teritorijā vai tās tuvumā.
Blakus ēdnīca.

Sākuma periodā iespējama nedaudz samazināta nomas maksa.
Apsaimniekošana 0.70 eur/kvm.

Iespējams nomāt daļu no telpām, sākot ar 200 kvm.

  • Apdare: betona grīda
  • Aprīkojums: biroja telpas, Apsildāmas telpas
  • Ēkas raksturojums: pakešu logi, pagalma māja, jaunais projekts, ir lifts
  • Atrašanās vieta: ērta sabiedriskā transporta kustība, liela autobraucēju plūsma
  • Autostāvvieta: stāvvieta pagalmā
  • Komunikācijas: pilsētas apkure, liela elektrības jauda
  • Drošība: metāla durvis, pieejama signalizācija, slēgta un apsargājama teritorija, videonovērošana
Īpašuma ID numurs: 66072

Īpašums kartē

  • Bing karte
  • Bing bird eye
  • Openstreet Karte
Ivars Blanks
Ivars Blanks Aģents
Sazināties ar aģentu:
  • Drukāt