Iznomā ražošanas telpas, Braslas iela, Purvciems / 1100€

Atrašanās vieta:Rīga, Labais krasts, Purvciems
Iela:Braslas
Ēkas tips:Specprojekts
Stāvs:1/2
Platība:200 m²
Cena:1 100 € (5.5 €/m²)
Papildus maksājumi:komunālie maksājumi; PVN (21%)
Pieejams no:iŠodienas

Īpašuma apraksts

Ražošanas vai tirdzniecības telpas Purvciemā.

+ Telpas izmantošanas kods 12.11 - ēdināšanas uzņēmumam.
+ 1. stāvs.
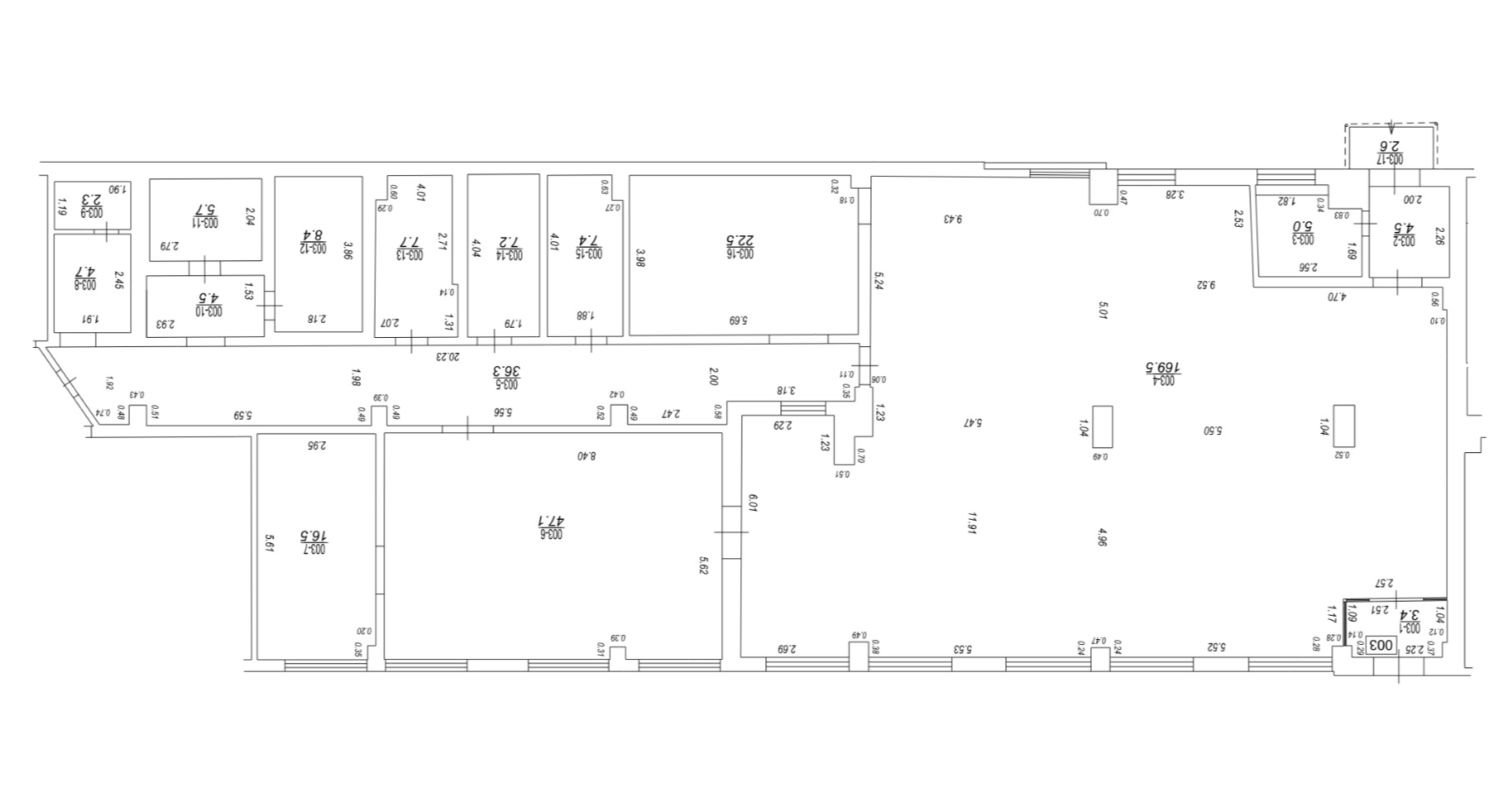
+ Platība sastāv no zāles, virtuves, telpas trauku mazgāšanai, garderobes, noliktām, kabinetiem, 2 wc.
+ Ēdināšanas uzņēmuma piemērota ventilācija.
+ Ieeja no pagalma un no ēkas fasādes.

Bildēs redzama 400 kvm platība, bet to ir iespējams sadalīt.

    Īpašuma ID numurs: 66339

    Īpašums kartē

    • Bing karte
    • Bing bird eye
    • Openstreet Karte
    Ivars Blanks
    Ivars Blanks Aģents
    Sazināties ar aģentu:
    • Drukāt