Iznomā tirdzniecības telpas, Maskavas iela, Ķengarags / 2000€
Nav pieejams!

Atrašanās vieta:Rīga, Labais krasts, Ķengarags
Iela:Maskavas
Ēkas tips:Renovēta māja
Stāvs:1/5
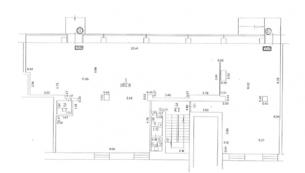
Platība:192 m²
Cena:2 000 € (10.4 €/m²)
Papildus maksājumi:apsaimniekošanas maksa (0.46 €/m²); komunālie maksājumi; skaitītāju rādījumi; PVN (21%); nekustamā īpašuma nodoklis

Īpašuma apraksts

Plašas 1. stāva veikala telpas kopā ar pagrabtelpām.

Maskavas ielā 250, blakus Ķengaraga tirgum.

Plānojums: 1. stāvā 192 kvm + pagrabstāvs 220 kvm noliktavas vajadzībām.
Pagrabstāvam piekļuve pa trepēm + pagalma daļas vārti preces piegādei.

Fasādes daļas ieeja 1. stāvam no Maskavas ielas. Var telpu dalīt,(ir 2 ieejas no ielas).
Veikala telpu dziļākajā daļā izbūvēti pāris kabineti + koridors + sanmezgls.

Veikala iekštelpās labs remonts, uzstādītas ugunsdrošības un apsardzes signalizācijas.
Fasādes logiem un ieejas durvīm automātiski nolaižamas metāla aizsargžalūzijas.

Lieli skatlogi, labas reklāmas iespējas uz ēkas fasādes. Blakus Ķengaraga guļamrajons, sabiedriskā transporta pieturvietas, veikali un skolas.

Komunālās izmkasas,(viss kopā): 2018. gada janvārī bija ap Eur 600/mēnesī.

Papildus nomas maksai un komunālajiem maksājumiem ir jāsedz IIN 10%.

  • Apdare: gala apdare, flīžu grīda
  • Aprīkojums: uzstādīta santehnika
  • Plānojums: atvērta tipa plānojums
  • Ēkas raksturojums: ieeja no ēkas fasādes, pakešu logi, plaši skatlogi, fasādes māja, hruščovka
  • Atrašanās vieta: tuvumā veikali un kafejnīcas, tuvumā skolas un bērnudārzi, ērta sabiedriskā transporta kustība, liela gājēju plūsma, liela autobraucēju plūsma
  • Autostāvvieta: stāvvieta pagalmā
  • Tirdzniecības platību izm. veids: ārstniecības uzņēmumam, masāžas salons, skaistumkopšanas salons, sporta klubs, veikals
  • Komunikācijas: pilsētas apkure, pieejams internets, pilsētas ūdens apgāde, pilsētas kanalizācija
  • Drošība: aizsargžalūzijas, pieejama signalizācija
Īpašuma ID numurs: 43183

Īpašums kartē

  • Bing karte
  • Bing bird eye
  • Openstreet Karte
Emīls Valters Muižnieks
Emīls Valters Muižnieks Aģents
Sazināties ar aģentu:
  • Drukāt