Iznomā tirdzniecības telpas, Deglava iela, Purvciems / 1450€
Nav pieejams!

Atrašanās vieta:Rīga, Labais krasts, Purvciems
Iela:Deglava
Ēkas tips:Jaunais projekts
Stāvs:1/1
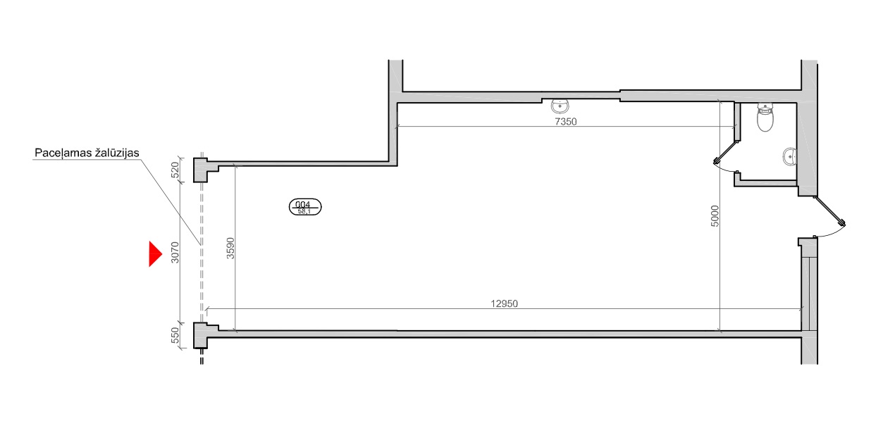
Platība:58 m²
Cena:1 450 € (25 €/m²)
Papildus maksājumi:apsaimniekošanas maksa; komunālie maksājumi; PVN (21%)

Īpašuma apraksts

Tirdzniecības telpas Purvciemā.

+ 1. stāvs.
+ Telaps izvietotas pretī kasēm.
+ Pašlaik platība sastāv no atvērtas telpas.
+ Ventilācija un kondicionieris.
+ Ēkai gāzes apkure.
+ Pie ēkas autostāvvieta.
+ Ēkas enkurnomnieki "RIMI" un "Drogas".
Pie ēkas sabiedriskā transporta pieturvieta. Papildus nomas maksai jāmaksā apsaimniekošanas maksa un komunālie maksājumi.

  • Apdare: gala apdare
  • Plānojums: brīvais plānojums (nav starpsienu)
  • Ēkas raksturojums: ieeja no ēkas fasādes, fasādes māja
  • Atrašanās vieta: ērta sabiedriskā transporta kustība, liela gājēju plūsma
  • Autostāvvieta: bezmaksas autostāvvieta
  • Tirdzniecības platību izm. veids: veikals
  • Komunikācijas: pilsētas apkure, pieejams internets
Īpašuma ID numurs: 51395

Īpašums kartē

Edgars Regzdiņš
Edgars Regzdiņš Aģents
Sazināties ar aģentu:
  • Drukāt