Iznomā tirdzniecības telpas, Torņa iela, Vecrīga / 515€

Atrašanās vieta:Rīga, Labais krasts, Centrs
Iela:Torņa
Ēkas tips:Renovēta pirmskara laika māja
Mēbeles:Nemēbelēts
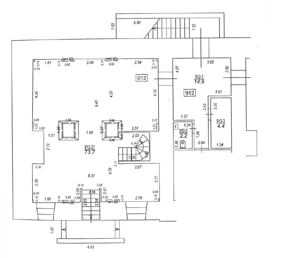
Platība:73.7 m²
Cena:515 € (7 €/m²)
Papildus maksājumi:apsaimniekošanas maksa (1.28 €/m²); komunālie maksājumi; PVN (21%)
Pieejams no:iŠodienas

Īpašuma apraksts

Puspagraba telpas Jēkaba kazarmās.

Viena liela telpa.
Iespējams uz gājēju ielas izvietot terasi.
Telpu lietošanas kods - kafejnīca.

Par cik daļā telpu vēlams kosmētiskais remonts, tad pirmie 2 mēneši ir bez nomas maksas.

Papildus maksājums par apsaimniekošanu.
Komunālie maksājumi pēc skaitītājiem.

  • Apdare: nepieciešams kosmētiskais remonts
  • Ēkas raksturojums: ieeja no ēkas fasādes, koka pakešu logi, fasādes māja, kultūrvēsturisks piemineklis
  • Atrašanās vieta: tuvumā kanāls, tuvumā parks, tuvumā veikali un kafejnīcas, tuvumā skolas un bērnudārzi, ērta sabiedriskā transporta kustība, top gājēju iela, liela gājēju plūsma
  • Autostāvvieta: maksas stāvvieta tuvākajā apkārtnē
  • Drošība: pieejama signalizācija, koda atslēga, slēgta kāpņu telpa
Īpašuma ID numurs: 65652

Īpašums kartē

  • Bing karte
  • Bing bird eye
  • Openstreet Karte
Ivars Blanks
Ivars Blanks Aģents
Sazināties ar aģentu:
  • Drukāt