Iznomā tirdzniecības telpas, Ganību dambis, Sarkandaugava / 429€

Atrašanās vieta:Rīga, Labais krasts, Centrs
Iela:Ganību dambis
Ēkas tips:Specprojekts
Mēbeles:Nemēbelēts
Stāvs:1/3
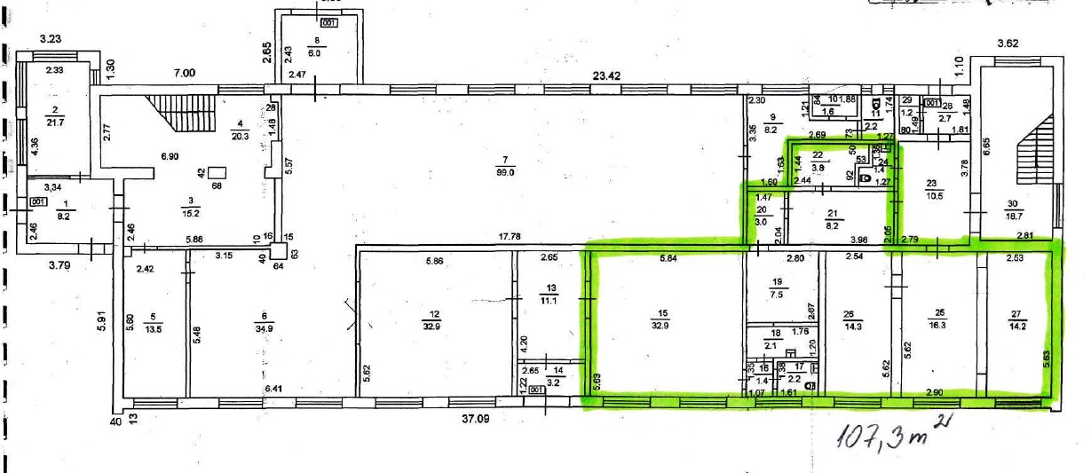
Platība:107.3 m²
Cena:429 € (4 €/m²)
Papildus maksājumi:apsaimniekošanas maksa (1.00 €/m²); komunālie maksājumi; skaitītāju rādījumi; PVN (21%)
Drošības depozīts:500 €
Minimālais īres termiņš:12 mēneši
Pieejams no:iŠodienas

Īpašuma apraksts

Komerctelpas Ganību dambī, Rīgā, kas piemērotas dažādiem biznesa risinājumiem.

Izmantojiet šo iespēju un pielāgojiet telpas savām vajadzībām!

Atkarībā no vajadzības, vienojoties atsevišķi, iznomātājs var veikt remontu un pielāgos telpas!

Telpas piemērotas dažādiem biznesa risinājumiem:

• Kafejnīca/Ēdnīca vai uzkodu bārs
• Veikals/noliktava
• Fitness un veselības centrs
• Radošās darbnīcas un studijas
• Veļas mazgātava

Telpu apraksts:
• Laba atrašanās vieta, ērti piebraukt ar auto vai sabiedrisko transportu.Tīra un sakopta teritorija
• Telpu kopējā platība ir 107.3 kv.m.
• Telpas sastāv no tirdzniecības zāles un palīgtelpām. Iespēju robežās telpas ir iespējams pārplānot.


Ērtības:
+ Elektro auto uzlāde
+ Video novērošana
+ Piekļuve 24/7
+ Klientiem 1h parkings bez maksas
+ Ēkā var nokļūt no ielas puses, kā arī no pagalma/parkinga puses
+ 1 parkings iekļauts nomas maksā
+ Papildus parkings 27 eur + pvn
+ Signalizācija

- Tuvumā benzīntanks
- Sabiedriskais transports
- Netālu Lidls

Nomas maksa: 4.00 EUR/m² + PVN.
Apsaimniekošana: 1.00 EUR/m² + PVN.
Papildus komunālie maksājumi pēc fakta.

Lūdzu zvaniet vai rakstiet un norunāsim jums piemērotu telpu apskates laiku.

  • Plānojums: telpas gan izolētas gan caurstaigājamas, Noliktavas iespējas
  • Autostāvvieta: stāvvieta pagalmā
  • Drošība: pieejama signalizācija, slēgta teritorija, videonovērošana
Īpašuma ID numurs: 66013

Īpašums kartē

  • Bing karte
  • Bing bird eye
  • Openstreet Karte
Dace Levčenko
Dace Levčenko Aģents
Sazināties ar aģentu:
  • Drukāt