Iznomā tirdzniecības telpas, Raiņa iela, Jelgava / 1718€

Atrašanās vieta:Jelgava
Iela:Raiņa
Ēkas tips:Renovēta māja
Stāvs:1/4
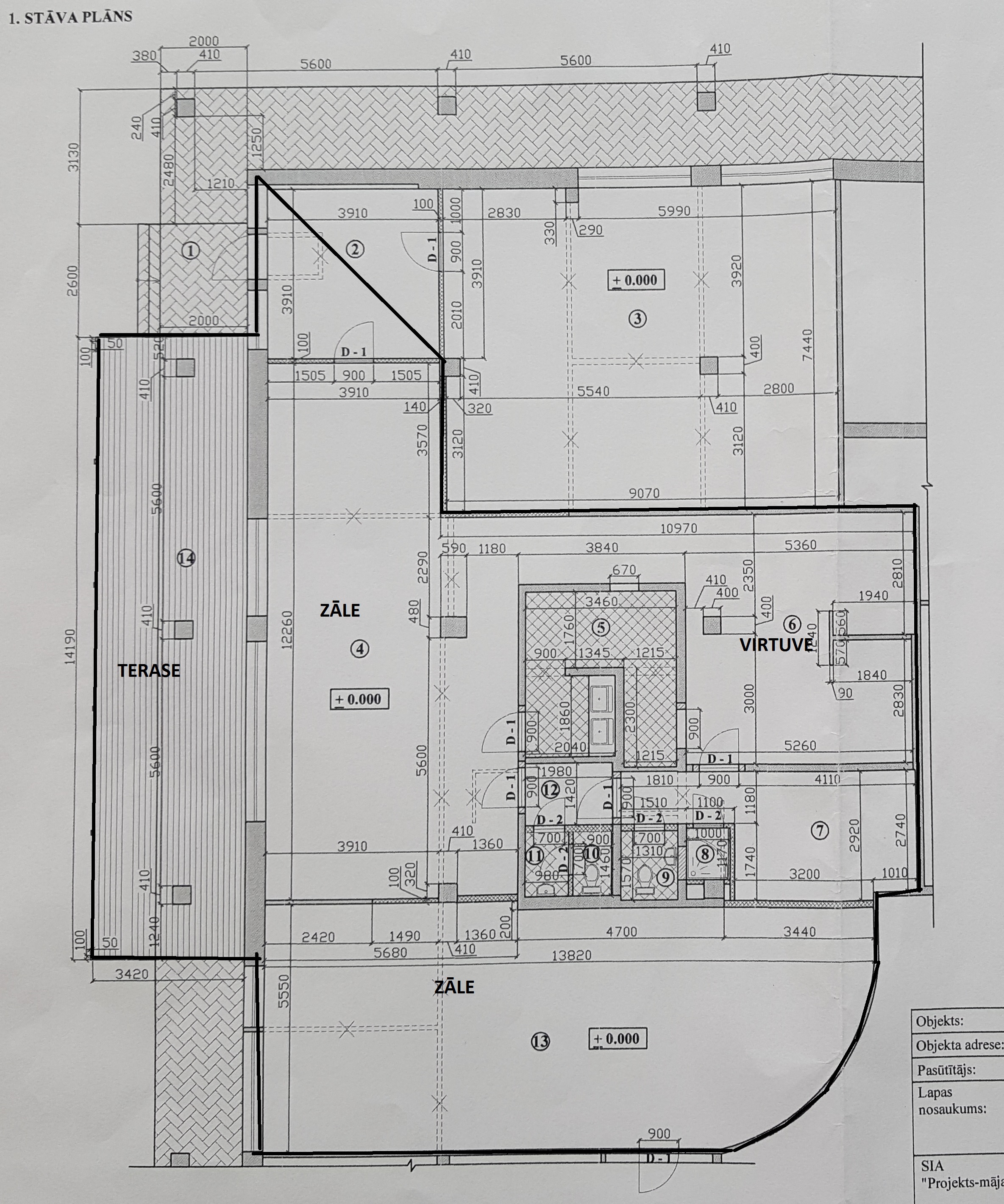
Platība:214.8 m²
Cena:1 718 € (8 €/m²)
Papildus maksājumi:komunālie maksājumi; skaitītāju rādījumi; PVN (21%)
Pieejams no:iŠodienas

Īpašuma apraksts

Iznomā komerctelpas Jelgavas centrā. Telpas atrodas aktīvā un labi pieejamā vietā Jelgavas centrā. Blakus Raiņa parks, veikali, izglītības iestādes un sabiedriskā transporta pieturas. Liela cilvēku plūsma un laba redzamība. Bezmaksas autostāvvieta klientiem un darbiniekiem. Telpas tiek piedāvātas bez mēbelēm un aprīkojuma – iespēja pielāgot savām vajadzībām. Apsaimniekošanas maksa iekļauta nomas maksā. Siltums – pēc skaitītājiem. Ūdens / kanalizācija / elektroenerģija – pēc skaitītājiem. Sazinieties, lai vienotos par apskates laiku un saņemtu papildu informāciju. Šī ir lieliska iespēja attīstīt savu ēdināšanas biznesu vienā no Jelgavas pieprasītākajām vietām.

  • Apdare: gala apdare, flīžu grīda, linoleja grīda
  • Aprīkojums: uzstādīta santehnika, gaisa ventilācija
  • Plānojums: atvērta tipa plānojums
  • Ēkas raksturojums: ieeja no ēkas fasādes, pakešu logi, plaši skatlogi, fasādes māja, renovēta māja
  • Atrašanās vieta: tuvumā parks, ērta sabiedriskā transporta kustība, liela gājēju plūsma, liela autobraucēju plūsma
  • Komunikācijas: pilsētas apkure, pieejams internets, liela elektrības jauda, pilsētas ūdens apgāde, pilsētas kanalizācija
  • Drošība: pieejama signalizācija, videonovērošana
Īpašuma ID numurs: 67105

Īpašums kartē

Tatjana Šapošņikova
Tatjana Šapošņikova Aģents
Sazināties ar aģentu:
  • Drukāt