Pārdod tirdzniecības telpas, Malkas iela iela, Liepāja / 1000000€

Atrašanās vieta:Liepāja
Iela:Malkas iela
Ēkas tips:Specprojekts
Stāvs:1/2 (ir lifts)
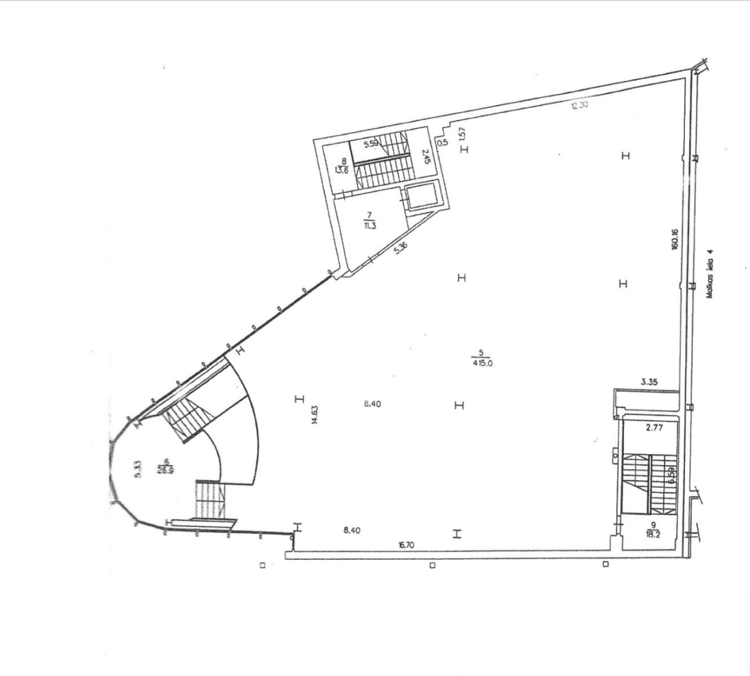
Platība:1410 m²
Zemes platība:814 m²
Cena:1 000 000 € (709.2 €/m²)
Papildus maksājumi:skaitītāju rādījumi; PVN (21%); nekustamā īpašuma nodoklis

Īpašuma apraksts

PĀRDOD KOMERCOBJEKTU LIEPĀJAS CENTRĀ.

Pārdod daudzfunkcionālas komerctelpas Liepājas centrā ar ērtu un stratēģiski izdevīgu atrašanās vietu.

Tiek piedāvāta visa ēka – divi virszemes stāvi un pagrabstāvs, kas piemēroti dažādu veidu uzņēmējdarbībai.

- Laba piekļuve un attīstīta infrastruktūra;
- Ērta klientu un darbinieku piekļuve
- Autostāvvieta līdz 5 automašīnām
- Plašas iespējas telpu pielāgošanai dažādām biznesa vajadzībām

Lifts no -1 līdz 2. stāvam (šobrīd iekonservēts).

- 1 stāva kabinetu dalījums ar ūdens pievadiem – piemērots skaistumkopšanai, masāžas kabinetiem, frizētavai.

Ēka nodota ekspluatācijā 2007. gadā.
Pamati – monolītais dzelzsbetons;
Ārsienas – gāzbetona bloki;
Jumta konstrukcija – koka spāres;
Jumta segums – profilētas tērauda loksnes.

Inženierkomunikācijas:
- Gāzes apkure (savs katls);
- Pilsētas ūdens un kanalizācija;
- Aukstais ūdens;
- Karstais ūdens – boileris.

Pielietojums:
- Tirdzniecībai;
- Sporta zālei;
- Medicīnas iestādei;
- Skaistumkopšanas salonam;
- Showroom vai birojam;
- Citai komercdarbībai.

Šis objekts ir lieliska iespēja attīstīt biznesu vai investēt, pateicoties tā daudzfunkcionalitātei un atrašanās vietai pilsētas centrā.

Sazinieties, lai saņemtu papildu informāciju vai vienotos par objekta apskati!

  • Apdare: stāvoklis ļoti labs, gala apdare, flīžu grīda
  • Plānojums: atvērta tipa plānojums
  • Ēkas raksturojums: ieeja no ēkas fasādes
  • Atrašanās vieta: ērta sabiedriskā transporta kustība
  • Autostāvvieta: garantēta stāvvieta pagalmā
  • Tirdzniecības platību izm. veids: ārstniecības uzņēmumam, klubs, skaistumkopšanas salons, sporta klubs, veikals
  • Komunikācijas: gāzes apkure
  • Drošība: pieejama signalizācija
Īpašuma ID numurs: 67135

Īpašums kartē

Tatjana Šapošņikova
Tatjana Šapošņikova Aģents
Sazināties ar aģentu:
  • Drukāt