Iznomā biroju, Valdemāra iela, Centrs / 4917€

Atrašanās vieta:Rīga, Labais krasts, Centrs
Iela:Valdemāra
Ēkas tips:Specprojekts
Telpas:15
Stāvs:3/5 (ir lifts)
Platība:614.6 m²
Cena:4 917 € (8 €/m²)
Papildus maksājumi:apsaimniekošanas maksa (0.50 €/m²); komunālie maksājumi; skaitītāju rādījumi; PVN (21%)
Pieejams no:iŠodienas

Īpašuma apraksts

Izīrē Biroja telpas renovētā ēkā Rīgas centrā, Kr. Valdemāra ielā 20.

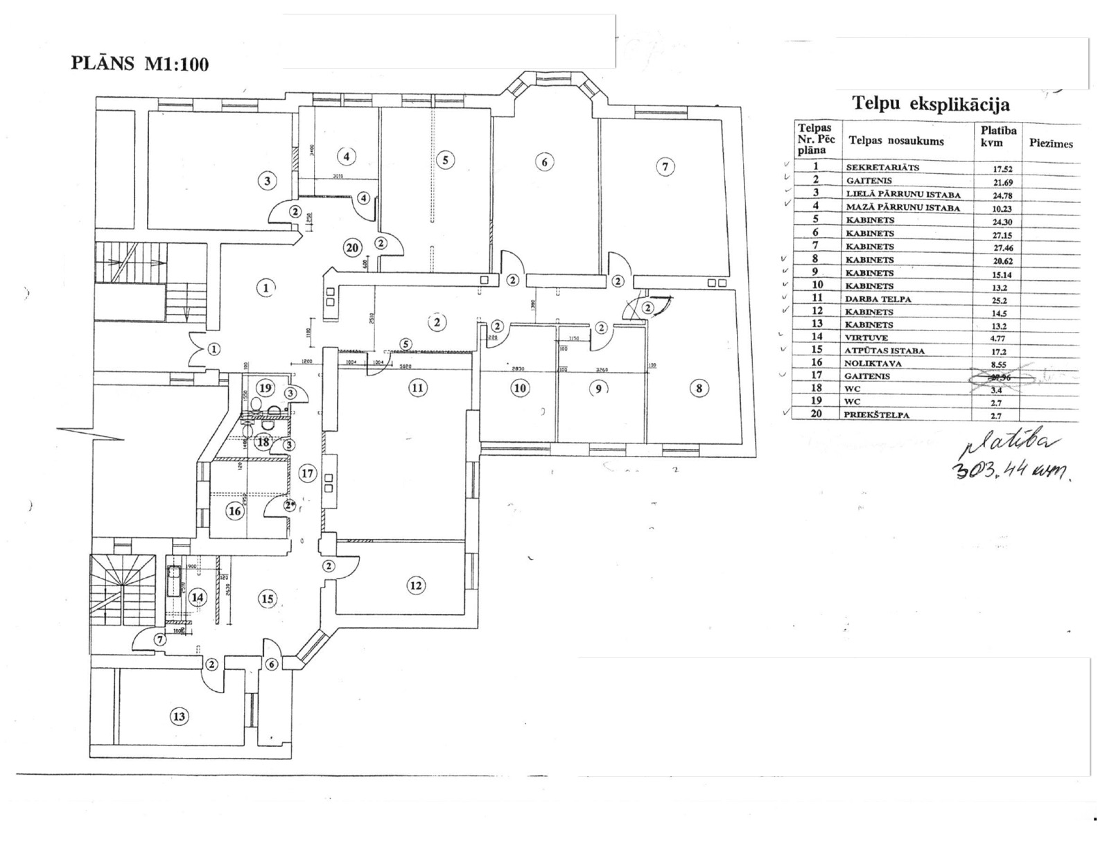
Piedāvājam biroja telpas trešajā stāvā fasādes ēkā. Telpu plānojums:

- 9 atsevišķi kabineti;
- vairākas labierīcības;
- virtuve;
- neliels balkons;

Tehniskie risinājumi un aprīkojums:
- optiskais internets;
- uzstādītas apsardzes un ugunsdrošības - signalizācijas;
- gala apdare iekštelpās (pie nepieciešamības, telpas var tikt pielāgotas nomnieka vajadzībām).
- mīkstā seguma grīdas, LED apgaismojums;
- PVC verami logi ar skatu gan uz Kr. Valdemāra ielu, gan uz iekšpagalmu

Izmaksas:

Apsaimniekošana – 0.50 EUR/m²
NĪN – 4 EUR/m² gadā.
Elektrība un gāzes apkure – pēc skaitītāja;
Papildus visam tiek piemērots PVN

Papildu iespējas:

autostāvvietas ēkas iekšpagalmā (5 vietas) – 120 EUR/gab./mēn.

Šīs telpas ir lieliski piemērotas uzņēmumam, kas vēlas atrasties pašā Rīgas centrā, renovētā ēkā ar reprezentablu fasādi un ērtām darba telpām.

  • Aprīkojums: iebūvēta virtuve, duša, biroja telpas
  • Plānojums: telpas gan izolētas gan caurstaigājamas
  • Ēkas raksturojums: ieeja no ēkas fasādes, ir lifts
  • Atrašanās vieta: tuvumā parks, tuvumā veikali un kafejnīcas, ērta sabiedriskā transporta kustība, top gājēju iela, liela gājēju plūsma
  • Autostāvvieta: stāvvieta pagalmā
  • Komunikācijas: pilsētas apkure, pieejams internets, pieejama televīzija, pilsētas ūdens apgāde, pilsētas kanalizācija
Īpašuma ID numurs: 65485

Īpašums kartē

  • Bing karte
  • Bing bird eye
  • Openstreet Karte
Tatjana Šapošņikova
Tatjana Šapošņikova Aģents
Sazināties ar aģentu:
  • Drukāt

Līdzīgi īpašumi