Iznomā biroju, Stabu iela, Centrs / 5330€

Atrašanās vieta:Rīga, Labais krasts, Centrs
Iela:Stabu
Ēkas tips:Renovēta pirmskara laika māja
Telpas:16
Stāvs:6/6 (ir lifts)
Platība:561 m²
Cena:5 330 € (9.5 €/m²)
Papildus maksājumi:komunālie maksājumi
Minimālais īres termiņš:12 mēneši
Pieejams no:iŠodienas

Īpašuma apraksts

Iznomā biroju Rīgas centrā – Stabu ielā 34

Birojs atrodas fasādes ēkā starp Tērbatas un K. Barona ielām, ieeja caur slēdzamu iekšpagalmu.

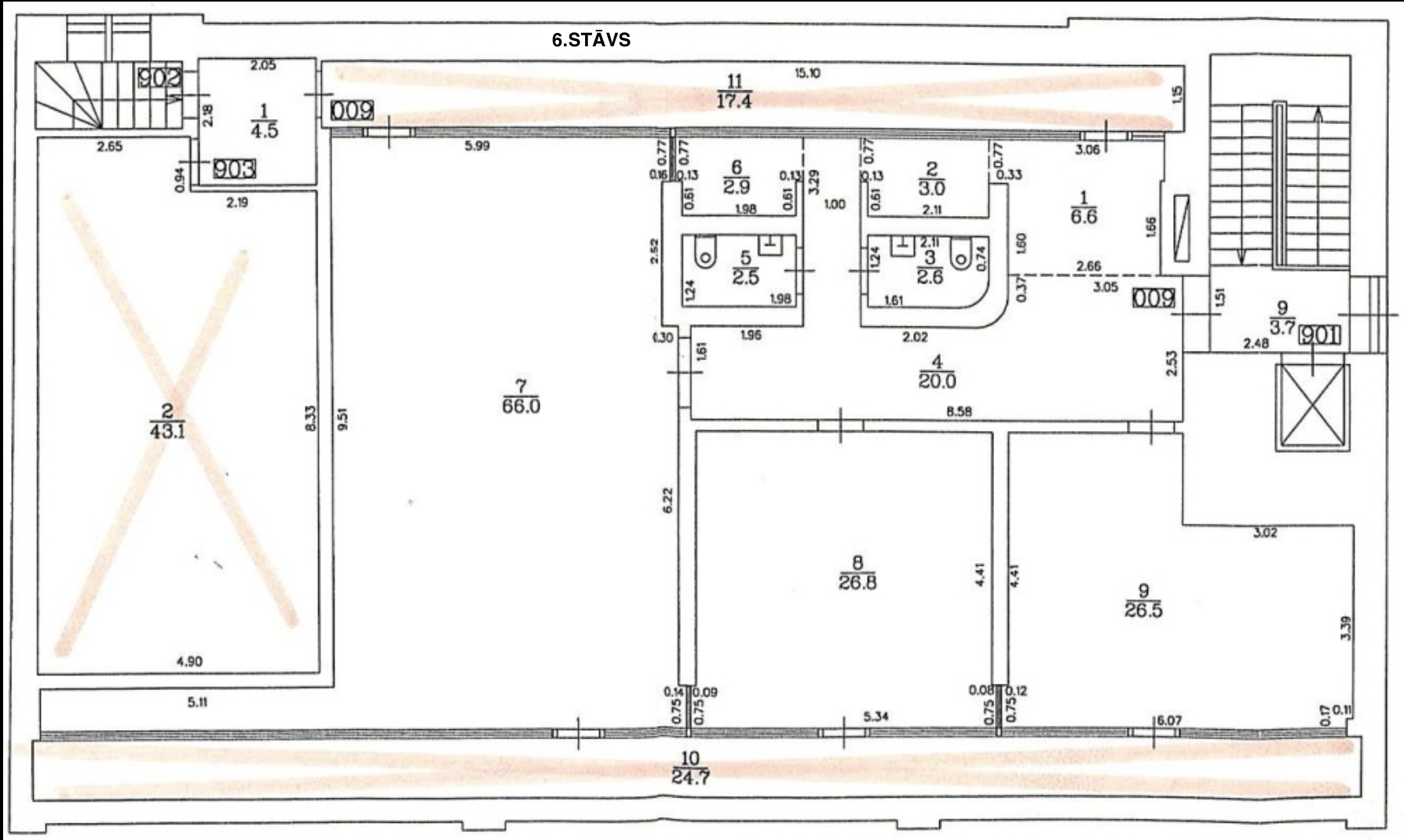
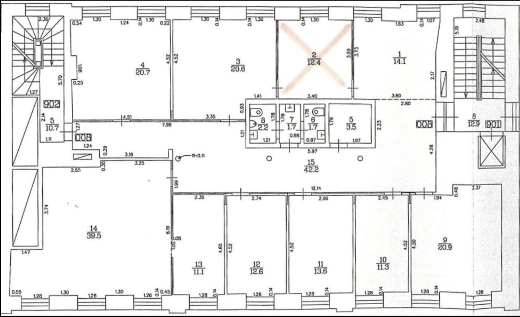
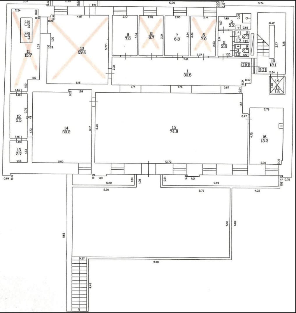
Plānojums:
+ viss ēkas 6./5./0. stāvs
+ 18 darba telpas
+ Sekretāres zona pie ieejas
+ Virtuve un 2 WC

Ērtības:
+ Autonoma gāzes apkure
+ Gaisa kondicionēšana un ventilācija
+ Čipkaršu piekļuves sistēma
+ Visas komunikācijas, optiskais internets (Bite)
+ Divi elektrotīkli (parastais un datoriem)

Papildu priekšrocības:
+ Iespēja nomāt ar mēbelēm, bez tām vai daļēji mēbelētu
+ Pieejama plaša koplietošanas terase (4. stāvā)
+ Maksas auto stāvvietas tuvumā

Maksājumi:
Nomas maksa – 9.5 EUR/m² + PVN
Komunālie un apsaimniekošana – 2.7 EUR/m² + PVN
Drošības nauda – 2 mēnešu nomas maksas apmērā


Papildu info un apskatei – sazinieties!

  • Apdare: augstvērtīgs remonts un apdare
  • Aprīkojums: iebūvēta virtuve, gaisa kondicionētājs
  • Plānojums: telpas gan izolētas gan caurstaigājamas
  • Ēkas raksturojums: ieeja no ēkas fasādes, ir lifts
  • Atrašanās vieta: ērta sabiedriskā transporta kustība
  • Autostāvvieta: stāvvieta pagalmā
  • Komunikācijas: pieejams optiskais internets
  • Drošība: slēgts pagalms, videonovērošana
Īpašuma ID numurs: 66773

Īpašums kartē

Emīls Valters Muižnieks
Emīls Valters Muižnieks Aģents
Sazināties ar aģentu:
  • Drukāt

Līdzīgi īpašumi