Iznomā biroju, Meierovica iela, Centrs / 1414€

Atrašanās vieta:Rīga, Labais krasts, Centrs
Iela:Meierovica
Ēkas tips:Renovēta pirmskara laika māja
Telpas:3
Stāvs:4/6 (ir lifts)
Platība:202 m²
Cena:1 414 € (7 €/m²)
Papildus maksājumi:komunālie maksājumi; skaitītāju rādījumi; PVN (21%)
Papildus maksājumi vasarā:~450 €
Papildus maksājumi ziemā:~800 €
Pieejams no:iŠodienas

Īpašuma apraksts

Biroja telpas labi uzturētā biroju ēkā Meierovica bulvārī 16, minūtes gājiena attālumā no Laimas pulksteņa.

Birojam ir veikts remonts, tas ir aprīkots ar gaisa kondicionieri un piekļūšanas kontroles sistēmu.

Ēkai ir visas pilsētas komunikācijas, 1. stāvā dzīvā apsardze (dežurants), kā ar lifts.

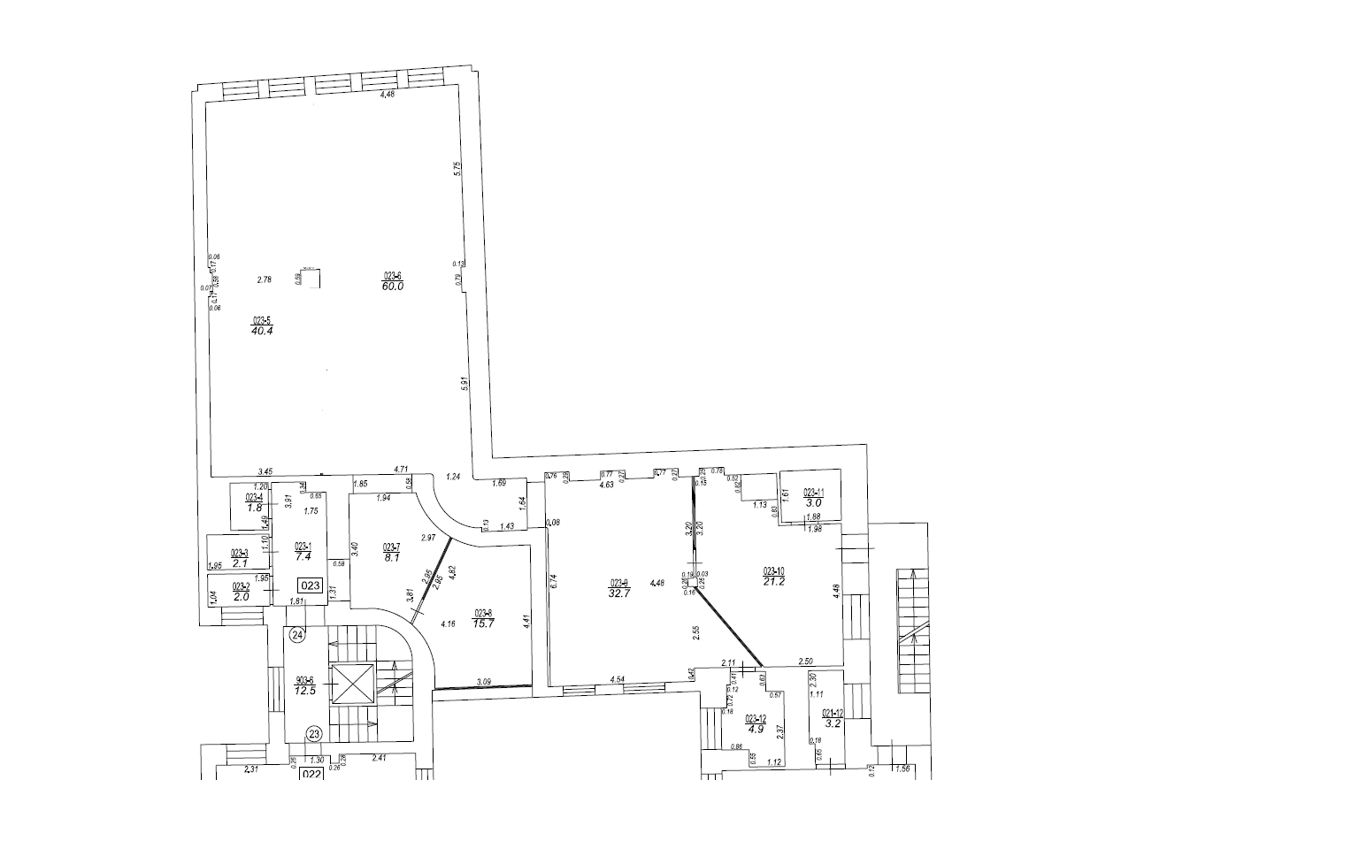
Biroja plānojums - viena liela darba telpa, divi nodalīti kabineti, virtuves telpa un labierīcības.

Pie ēkas var piebraukt un atstāt automašīnu (Rīgas satiksmes A zona).

Komunālie maksājumi ziemas mēnešos ap 650 EUR, vasaras ap 500 EUR + PVN + individuālā elektrība.

    Īpašuma ID numurs: 66071

    Īpašums kartē

    • Bing karte
    • Bing bird eye
    • Openstreet Karte
    Jānis Lipša
    Jānis Lipša Aģents
    Sazināties ar aģentu:
    • Drukāt

    Līdzīgi īpašumi