




























Pārdod dzīvokli, Antonijas iela 16A, Centrs / 280000€
| Atrašanās vieta: | Rīga, Labais krasts, Centrs | 
|---|---|
| Iela: | Antonijas 16A | 
| Ēkas tips: | Jaunais projekts | 
| Istabas: | 2 | 
| Stāvs: | 5/7 (ir lifts) | 
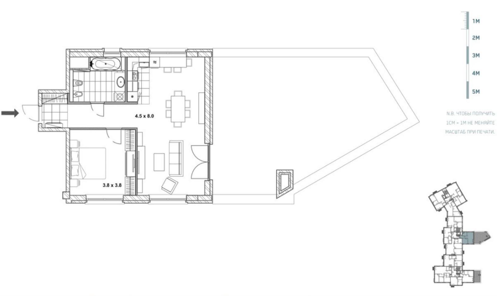
| Platība: | 125 m² | 
| Cena: | 280 000 € (2 240 €/m²) | 
Īpašuma apraksts
Tiek pārdots augšējā stāva dzīvoklis ar iespaidīgu terasi (60m2) klusajā centrā Antonijas ielā. Interjera dizainera veidots, aprīkots 2-istabu dzīvoklis (65m2) projektā Futuris. Ēkas augšējais stāvs dzīvoklī nodrošina sauli un dabīgu apgaismojumu. Moderna virtuve apvienota ar dzīvojamo istabu, guļamistaba, san. mezgls un priekštelpa ar garderobi. Iebūvētie skapji un plaukti.
Dzīvoklis atrodas prom no lielas gājēju un mašīnu plūsmas, klusā, zaļā iekšpagalmā. Futuris ir mūsdienīgs, moderns dzīvokļu nams, kas celts 2012. gadā, ko ieskauj elegantas dzīvokļu un biroju ēkas. Tuvumā atrodas Nacionālais mākslas muzejs, Dailes teātris, Kongresu nams, Kronvalda parks, kā arī Rīgas labākie restorāni, kafejnīcas, veikali.
- Apdare: stāvoklis ļoti labs, augstvērtīgs remonts un apdare, parketa grīda
- Aprīkojums: iebūvēta virtuve, trauku mazgājamā mašīna, pilnībā aprīkots/mēbelēts, iebūvēti sienas skapji, uzstādīta santehnika, siltās grīdas vannasistabā, duša, veļas mašīna, balkons/lodžija
- Plānojums: istabas gan izolētas gan caurstaigājamas
- Ēkas raksturojums: namrunis, plaši skatlogi, pagalma māja, ir lifts
- Atrašanās vieta: tuvumā veikali un kafejnīcas, ērta sabiedriskā transporta kustība
- Autostāvvieta: pazemes autostāvvieta
- Komunikācijas: pieejams optiskais internets
- Drošība: slēgta un apsargājama teritorija, videonovērošana
Īpašuma ID numurs: 65723
			Īpašums kartē
- Bing karte
- Bing bird eye
- Openstreet Karte
Citi īpašumi šajā adresē
Līdzīgi īpašumi
  Dzīvoklis, Dzīvoklis,
 Rūpniecības iela, 99m²399 900 € (4040 €/m²)
  Dzīvoklis, Dzīvoklis,
 Palasta iela, 100m²273 000 € (2730 €/m²)
  Dzīvoklis, Dzīvoklis,
 Ausekļa iela, 143m²200 000 € (1396 €/m²)
  Dzīvoklis, Dzīvoklis,
 Valdemāra iela, 112m²224 000 € (1992 €/m²)
  Dzīvoklis, Dzīvoklis,
 Skolas iela, 96m²308 160 € (3200 €/m²)
  Dzīvoklis, Dzīvoklis,
 Alfrēda Kalniņa iela, 88m²220 000 € (2500 €/m²)
  Dzīvoklis, Dzīvoklis,
 Eksporta iela, 137m²150 300 € (1090 €/m²)
  Dzīvoklis, Dzīvoklis,
 Ģertrūdes iela, 101m²195 000 € (1931 €/m²)
  Dzīvoklis, Dzīvoklis,
 Ausekļa iela, 156m²385 000 € (2468 €/m²)
  Dzīvoklis, Dzīvoklis,
 Raiņa bulvāris iela, 95m²370 000 € (3895 €/m²)
  Dzīvoklis, Dzīvoklis,
 Valdemāra iela, 103m²229 000 € (2224 €/m²)
  Dzīvoklis, Dzīvoklis,
 Dzirnavu iela, 113m²259 000 € (2293 €/m²)
  Dzīvoklis, Dzīvoklis,
 Aleksandra Čaka iela, 151m²299 000 € (1981 €/m²)
  Dzīvoklis, Dzīvoklis,
 Dzirnavu iela, 90m²209 000 € (2323 €/m²)
  Dzīvoklis, Dzīvoklis,
 Rūpniecības iela, 145m²330 000 € (2276 €/m²)
  Dzīvoklis, Dzīvoklis,
 Kalpaka bulvāris iela515 000 € (4814 €/m²)
  Dzīvoklis, Dzīvoklis,
 Vīlandes iela, 87m²235 000 € (2680 €/m²)
  Dzīvoklis, Dzīvoklis,
 Elizabetes iela, 94m²530 000 € (5585 €/m²)
  Dzīvoklis, Dzīvoklis,
 Brīvības iela, 106m²171 000 € (1606 €/m²)
  Dzīvoklis, Dzīvoklis,
 Raiņa bulvāris iela, 112m²665 000 € (5917 €/m²)
  Dzīvoklis, Dzīvoklis,
 Dzirnavu iela, 132m²450 000 € (3410 €/m²)
  Dzīvoklis, Dzīvoklis,
 Stabu iela, 110m²401 800 € (3640 €/m²)
  Dzīvoklis, Dzīvoklis,
 Baznīcas iela, 141m²339 840 € (2400 €/m²)
  Dzīvoklis, Dzīvoklis,
 Raiņa bulvāris iela, 93m²290 000 € (3092 €/m²)
  Dzīvoklis, Dzīvoklis,
 Hospitāļu iela, 131m²295 000 € (2252 €/m²)
  Dzīvoklis, Dzīvoklis,
 Ausekļa iela, 140m²500 000 € (3572 €/m²)
  Dzīvoklis, Dzīvoklis,
 Ausekļa iela, 129m²272 000 € (2109 €/m²)
  Dzīvoklis, Dzīvoklis,
 Upīša iela, 127m²215 900 € (1700 €/m²)
  Dzīvoklis, Dzīvoklis,
 Baznīcas iela, 138m²304 260 € (2200 €/m²)
  Dzīvoklis, Dzīvoklis,
 Elizabetes iela, 94m²465 000 € (4900 €/m²)
  Dzīvoklis, Dzīvoklis,
 Kalpaka bulvāris iela410 000 € (3868 €/m²)
  Dzīvoklis, Dzīvoklis,
 Elizabetes iela, 145m²875 000 € (5998 €/m²)
  Dzīvoklis, Dzīvoklis,
 Krišjāņa Valdemāra iela225 000 € (2185 €/m²)
  Dzīvoklis, Dzīvoklis,
 Elizabetes iela, 98m²648 000 € (6599 €/m²)
  Dzīvoklis, Dzīvoklis,
 Raiņa bulvāris iela, 148m²296 000 € (2000 €/m²)
  Dzīvoklis, Dzīvoklis,
 Matīsa iela, 120m²210 350 € (1750 €/m²)
  Dzīvoklis, Dzīvoklis,
 Skanstes iela, 110m²310 000 € (2819 €/m²)
  Dzīvoklis, Dzīvoklis,
 Skolas iela, 106m²328 600 € (3083 €/m²)
  Dzīvoklis, Dzīvoklis,
 Skolas iela, 110m²275 000 € (2500 €/m²)
  Dzīvoklis, Dzīvoklis,
 Brīvības Bulvāris iela394 000 € (2737 €/m²)
  Dzīvoklis, Dzīvoklis,
 Brīvības iela, 161m²470 000 € (2905 €/m²)
  Dzīvoklis, Dzīvoklis,
 Elizabetes iela, 101m²620 000 € (6139 €/m²)
  Dzīvoklis, Dzīvoklis,
 Miera iela, 108m²346 900 € (3213 €/m²)
  Dzīvoklis, Dzīvoklis,
 Strēlnieku iela, 140m²1 300 000 € (9286 €/m²)
  Dzīvoklis, Dzīvoklis,
 Elizabetes iela, 145m²842 000 € (5803 €/m²)
  Dzīvoklis, Dzīvoklis,
 Blaumaņa iela, 140m²169 000 € (1204 €/m²)
  Dzīvoklis, Dzīvoklis,
 Strēlnieku iela, 120m²750 000 € (6250 €/m²)
  Dzīvoklis, Dzīvoklis,
 Emīlijas Benjamiņas iela156 000 € (1625 €/m²)
  Dzīvoklis, Dzīvoklis,
 Rūpniecības iela, 139m²450 000 € (3238 €/m²)
  Dzīvoklis, Dzīvoklis,
 Eksporta iela, 160m²200 000 € (1250 €/m²)
  Dzīvoklis, Dzīvoklis,
 Upīša iela, 130m²221 680 € (1700 €/m²)
  Dzīvoklis, Dzīvoklis,
 Stabu iela, 104m²375 345 € (3596 €/m²)
  Dzīvoklis, Dzīvoklis,
 Baznīcas iela, 141m²345 695 € (2450 €/m²)
  Dzīvoklis, Dzīvoklis,
 Pernavas iela, 87m²285 350 € (3250 €/m²)
  Dzīvoklis, Dzīvoklis,
 Stabu iela, 112m²427 260 € (3805 €/m²)
  Dzīvoklis, Dzīvoklis,
 Baznīcas iela, 140m²351 750 € (2500 €/m²)
  Dzīvoklis, Dzīvoklis,
 P.Brieža iela, 99m²299 000 € (3006 €/m²)
  Dzīvoklis, Dzīvoklis,
 Vīlandes iela, 87m²235 000 € (2680 €/m²)
  Dzīvoklis, Dzīvoklis,
 Pulkvieža Brieža iela330 000 € (2662 €/m²)
  Dzīvoklis, Dzīvoklis,
 Vīlandes iela, 112m²250 000 € (2227 €/m²)
  Dzīvoklis, Dzīvoklis,
 Dzirnavu iela, 119m²300 000 € (2513 €/m²)
  Dzīvoklis, Dzīvoklis,
 Rūpniecības iela, 138m²399 000 € (2892 €/m²)
  Dzīvoklis, Dzīvoklis,
 Elizabetes iela, 110m²280 000 € (2546 €/m²)
  Dzīvoklis, Dzīvoklis,
 Baznīcas iela, 98m²230 000 € (2347 €/m²)
  Dzīvoklis, Dzīvoklis,
 Rūpniecības iela, 138m²399 000 € (2892 €/m²)
  Dzīvoklis, Dzīvoklis,
 Skolas iela, 114m²299 000 € (2610 €/m²)
  Dzīvoklis, Dzīvoklis,
 Skolas iela, 114m²320 000 € (2793 €/m²)
  Dzīvoklis, Dzīvoklis,
 P.Brieža iela, 109m²290 000 € (2661 €/m²)
  Dzīvoklis, Dzīvoklis,
 Matīsa iela, 115m²190 245 € (1650 €/m²)
  Dzīvoklis, Dzīvoklis,
 Antonijas iela, 119m²300 000 € (2513 €/m²)
  Dzīvoklis, Dzīvoklis,
 Elizabetes iela, 109m²711 000 € (6506 €/m²)
  Dzīvoklis, Dzīvoklis,
 Dzirnavu iela, 149m²380 000 € (2551 €/m²)
  Dzīvoklis, Dzīvoklis,
 Skolas iela, 118m²240 000 € (2034 €/m²)
  Dzīvoklis, Dzīvoklis,
 Dzirnavu iela, 133m²425 000 € (3196 €/m²)
  Dzīvoklis, Dzīvoklis,
 Ausekļa iela, 160m²550 000 € (3438 €/m²)
  Dzīvoklis, Dzīvoklis,
 Elizabetes iela, 92m²520 000 € (5653 €/m²)
  Dzīvoklis, Dzīvoklis,
 Skolas iela, 151m²305 000 € (2019 €/m²)
  Dzīvoklis, Dzīvoklis,
 Stabu iela, 125m²349 000 € (2792 €/m²)
  Dzīvoklis, Dzīvoklis,
 Brīvības Bulvāris iela299 750 € (3331 €/m²)
  Dzīvoklis, Dzīvoklis,
 Raina bulvaris iela, 154m²290 000 € (1884 €/m²)
  Dzīvoklis, Dzīvoklis,
 Aleksandra Čaka iela, 136m²299 000 € (2199 €/m²)
  Dzīvoklis, Dzīvoklis,
 Kr. Barona iela, 117m²215 000 € (1832 €/m²)
  Dzīvoklis, Dzīvoklis,
 Vīlandes iela, 161m²640 000 € (3976 €/m²)
  Dzīvoklis, Dzīvoklis,
 Elizabetes iela, 147m²976 000 € (6604 €/m²)
  Dzīvoklis, Dzīvoklis,
 Kalpaka bulvāris iela595 000 € (3824 €/m²)
  Dzīvoklis, Dzīvoklis,
 Republikas laukums iela590 000 € (3700 €/m²)
  Dzīvoklis, Dzīvoklis,
 Kārļa Milenbaha iela, 98m²149 900 € (1525 €/m²)
  Dzīvoklis, Dzīvoklis,
 Ģertrūdes iela, 153m²595 000 € (3889 €/m²)
  Dzīvoklis, Dzīvoklis,
 Stabu iela, 110m²401 750 € (3646 €/m²)






























