
























Pārdod dzīvokli, Skolas iela 17, Centrs / 216335€
| Atrašanās vieta: | Rīga, Labais krasts, Centrs |
|---|---|
| Iela: | Skolas 17 |
| Ēkas tips: | Jaunais projekts |
| Istabas: | 3 |
| Stāvs: | 3/7 (ir lifts) |
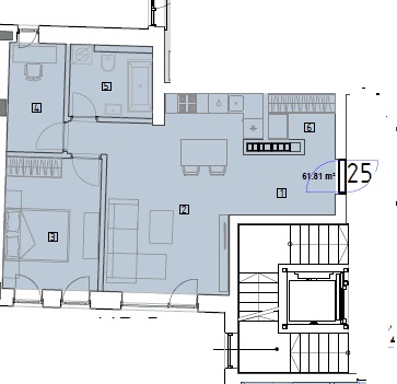
| Platība: | 61.8 m² |
| Cena: | 216 335 € |
Īpašuma apraksts
Skolas iela 17 – pilsētas ritms ar privātas mājas sajūtu!
Rīgas centrā top dzīvojamais projekts, kur mūsdienīga arhitektūra satiekas ar pārdomātu komfortu un mierīgu dzīves vidi. Skolas ielas 17 nams ir radīts cilvēkiem, kuri novērtē pilsētas dinamiku, bet savās mājās meklē līdzsvaru, kvalitāti un klusumu.
Tā ir dzīves telpa, kas pielāgojas tev!
Projektā paredzēti tikai 39 dzīvokļi, piedāvājot rūpīgi izsvērtu dažādību – no funkcionālām studijām līdz plašiem penthouse tipa apartamentiem. Dzīvokļu platības svārstās no 40 līdz 165 m², savukārt balkoni un terases kļūst par dabisku mājokļa turpinājumu.
Dzīvokļi tiek nodoti ar pelēko apdari, dodot iespēju veidot interjeru atbilstoši savam redzējumam. Nepieciešamības gadījumā iespējama arī vairāku dzīvokļu apvienošana.
Ikdienas komforts bez kompromisiem!
Dzīve centrā šeit nozīmē ērtību bez steigas:
-pazemes autostāvvieta ar autolifta sistēmu,
-papildus virszemes stāvvietas,
-elektroauto uzlādes iespējas,
-velonovietnes labiekārtotā pagalmā,
-individuālas noliktavas telpas katram dzīvoklim.
Ēkas augšstāvā paredzēts jumta dārzs, kas kalpo kā mierpilna atpūtas zona gan pieaugušajiem, gan bērniem.
-Slēgta teritorija, piekļuves kontrole un videonovērošana nodrošina privātumu un drošību ikdienā. Šī ir vide, kur iespējams atslēgties no pilsētas trokšņa, neatsakoties no tās priekšrocībām.
- Projektā izmantoti ilgtspējīgi un tehniski pārdomāti risinājumi – monolīta konstrukcija, augsta skaņas izolācija, alumīnija logi ar trīskāršo stiklojumu un griestu augstums līdz 2,90 m. Katram dzīvoklim paredzētas individuālas inženiertehniskās sistēmas, nodrošinot komfortu un energoefektivitāti.
- Premium klases apdare koplietošanas telpās.
- Skolas iela 17 ir viena no retajām jaunbūvēm Rīgas centrā, kur pieejams ierobežots dzīvokļu skaits. Šāda atrašanās vieta un projekta kvalitāte padara to par stabilu un ilgtermiņā vērtīgu ieguldījumu.
Noliktava - 15 000 EUR
Stāvvieta - 28 000 - 60 000 EUR
Projekts atrodas būvniecības stadijā, nodošana plānota 2026. gada rudenī.*
Sazinies ar mani, ja vēlies uzzināt vairāk par šo piedāvājumu!
*Sludinājumā ir redzamas projekta vizualizācijas.
- Apdare: pelēkā apdare
- Aprīkojums: gaisa kondicionētājs, gaisa ventilācija
- Plānojums: Noliktavas iespējas
- Ēkas raksturojums: ieeja no ēkas fasādes, namrunis, plaši skatlogi, spēļu laukums bērniem, fasādes māja, jaunais projekts, ir lifts
- Atrašanās vieta: tuvumā parks, tuvumā veikali un kafejnīcas, tuvumā skolas un bērnudārzi
- Autostāvvieta: pazemes autostāvvieta, stāvvieta pagalmā, maksas (Rīgas satiksmes) stāvvieta uz ielas, maksas stāvvieta tuvākajā apkārtnē
- Komunikācijas: pilsētas apkure ar individuālu skaitītāju
- Drošība: pieejama signalizācija, koda atslēga, slēgta teritorija, slēgts pagalms, videonovērošana
Īpašums kartē
Citi īpašumi šajā adresē
Līdzīgi īpašumi

Dzīvoklis,
Dzirnavu iela, 66m²92 000 € (1394 €/m²)
Dzīvoklis,
Stabu iela, 54m²215 000 € (3924 €/m²)
Dzīvoklis,
Stabu iela, 79m²289 300 € (3639 €/m²)
Dzīvoklis,
Lāčplēša iela iela, 74m²164 000 € (2217 €/m²)
Dzīvoklis,
Bruņinieku iela, 66m²93 000 € (1401 €/m²)
Dzīvoklis,
Krāsotāju iela, 60m²110 000 € (1813 €/m²)
Dzīvoklis,
Lāčplēša iela, 54m²96 075 € (1750 €/m²)
Dzīvoklis,
Brīvības iela, 62m²265 000 € (4275 €/m²)
Dzīvoklis,
Brīvības iela, 49m²159 575 € (3250 €/m²)
Dzīvoklis,
Brīvības iela, 48m²157 950 € (3250 €/m²)
Dzīvoklis,
Katrīnas dambis iela, 55m²122 540 € (2200 €/m²)
Dzīvoklis,
Andrejostas iela, 66m²295 888 € (4484 €/m²)
Dzīvoklis,
Merķeļa iela, 56m²204 840 € (3600 €/m²)
Dzīvoklis,
Ganību dambis iela, 62m²85 900 € (1373 €/m²)
Dzīvoklis,
Grostonas iela, 67m²284 900 € (4221 €/m²)
Dzīvoklis,
Tallinas iela, 57m²129 000 € (2264 €/m²)
Dzīvoklis,
Vīlandes iela, 64m²189 000 € (2954 €/m²)
Dzīvoklis,
Brīvības iela, 45m²158 900 € (3500 €/m²)
Dzīvoklis,
Lāčplēša iela, 65m²260 305 € (3950 €/m²)
Dzīvoklis,
Matīsa iela, 45m²94 000 € (2076 €/m²)
Dzīvoklis,
Lāčplēša iela, 77m²250 000 € (3247 €/m²)
Dzīvoklis,
Alfrēda Kalniņa iela, 59m²141 600 € (2400 €/m²)
Dzīvoklis,
Lāčplēša iela, 80m²270 000 € (3375 €/m²)
Dzīvoklis,
Pērnavas iela, 47m²138 040 € (2900 €/m²)
Dzīvoklis,
Dzirnavu iela, 68m²275 000 € (4045 €/m²)
Dzīvoklis,
Baznīcas iela, 80m²232 580 € (2900 €/m²)
Dzīvoklis,
Stabu iela, 76m²289 200 € (3761 €/m²)
Dzīvoklis,
Brīvības iela, 45m²147 550 €
Dzīvoklis,
Lāčplēša iela, 57m²195 000 € (3416 €/m²)
Dzīvoklis,
Vīlandes iela, 60m²200 000 € (3334 €/m²)
Dzīvoklis,
Vēžu iela, 46m²145 000 € (3105 €/m²)
Dzīvoklis,
Lāčplēša iela, 47m²164 850 € (3500 €/m²)
Dzīvoklis,
Akas iela, 61m²239 900 € (3933 €/m²)
Dzīvoklis,
Dzirnavu iela, 76m²289 000 € (3793 €/m²)
Dzīvoklis,
Merķeļa iela, 52m²190 080 € (3600 €/m²)
Dzīvoklis,
Terbatas iela, 58m²98 770 € (1700 €/m²)
Dzīvoklis,
Elizabetes iela, 70m²212 000 € (3029 €/m²)
Dzīvoklis,
Barona iela, 73m²175 000 € (2394 €/m²)
Dzīvoklis,
Dzirnavu iela, 70m²215 000 € (3072 €/m²)
Dzīvoklis,
Matīsa iela, 51m²107 000 € (2090 €/m²)
Dzīvoklis,
Lāčplēša iela, 63m²139 480 € (2200 €/m²)
Dzīvoklis,
Pērnavas iela, 48m²140 650 € (2900 €/m²)
Dzīvoklis,
Lāčplēša iela, 68m²259 160 € (3800 €/m²)
Dzīvoklis,
Elizabetes iela, 55m²140 000 € (2546 €/m²)
Dzīvoklis,
Jāņa Daliņa iela, 65m²188 000 € (2893 €/m²)
Dzīvoklis,
Miera iela, 44m²158 900 € (3571 €/m²)
Dzīvoklis,
Grostonas iela, 64m²304 900 € (4750 €/m²)
Dzīvoklis,
Skolas iela, 61m²199 750 € (3256 €/m²)
Dzīvoklis,
Pērnavas iela, 54m²158 630 € (2900 €/m²)
Dzīvoklis,
Elizabetes iela, 62m²315 000 € (5081 €/m²)
Dzīvoklis,
Pērnavas iela, 68m²197 780 € (2900 €/m²)
Dzīvoklis,
Baznīcas iela, 45m²143 412 € (3145 €/m²)
Dzīvoklis,
Lāčplēša iela, 44m²152 490 € (3450 €/m²)
Dzīvoklis,
Katrīnas dambis iela, 64m²128 600 € (2000 €/m²)
Dzīvoklis,
Aleksandra Čaka iela, 52m²165 000 € (3125 €/m²)
Dzīvoklis,
Pērnavas iela, 66m²192 560 € (2900 €/m²)
Dzīvoklis,
Kalpaka bulvāris iela290 000 € (4091 €/m²)
Dzīvoklis,
Alauksta iela, 46m²150 000 € (3219 €/m²)
Dzīvoklis,
Pērnavas iela, 70m²192 560 € (2744 €/m²)
Dzīvoklis,
Stabu iela, 48m²120 000 € (2500 €/m²)
Dzīvoklis,
Baznīcas iela, 80m²232 580 € (2900 €/m²)
Dzīvoklis,
Ganību dambis iela, 57m²79 000 € (1367 €/m²)
Dzīvoklis,
Dainas iela, 62m²176 900 € (2854 €/m²)
Dzīvoklis,
Lāčplēša iela, 60m²228 380 € (3800 €/m²)
Dzīvoklis,
Alberta iela, 68m²330 000 € (4853 €/m²)
Dzīvoklis,
Katrīnas dambis iela, 48m²117 000 € (2423 €/m²)
Dzīvoklis,
Stabu iela, 79m²279 250 € (3522 €/m²)
Dzīvoklis,
Raiņa bulvāris iela, 44m²289 000 € (6451 €/m²)
Dzīvoklis,
Lenču iela, 45m²120 000 € (2644 €/m²)
Dzīvoklis,
Rūpniecības iela, 60m²240 000 € (4000 €/m²)
Dzīvoklis,
Dzirnavu iela, 80m²155 000 € (1938 €/m²)
Dzīvoklis,
Baznīcas iela, 51m²164 480 € (3200 €/m²)
Dzīvoklis,
Jeruzalemes iela, 56m²260 000 € (4594 €/m²)
Dzīvoklis,
Krišjāņa Valdemāra iela187 000 € (2620 €/m²)
Dzīvoklis,
Brīvības iela, 45m²147 550 € (3250 €/m²)
Dzīvoklis,
Jāņa Daliņa iela, 64m²175 000 € (2709 €/m²)
Dzīvoklis,
Jeruzalemes iela, 58m²220 000 € (3748 €/m²)
Dzīvoklis,
Katrīnas dambis iela, 45m²89 310 € (1950 €/m²)
Dzīvoklis,
Lugažu iela, 63m²75 000 € (1191 €/m²)
Dzīvoklis,
Lāčplēša iela, 48m²165 240 € (3400 €/m²)
Dzīvoklis,
Blaumaņa iela, 80m²280 000 € (3500 €/m²)
Dzīvoklis,
Katrīnas dambis iela, 58m²113 100 € (1950 €/m²)
Dzīvoklis,
Rūpniecības iela, 71m²280 000 € (3944 €/m²)
Dzīvoklis,
Elizabetes iela, 62m²305 000 € (4920 €/m²)
Dzīvoklis,
Zirņu iela, 59m²133 500 € (2263 €/m²)
Dzīvoklis,
Elizabetes iela, 61m²295 000 € (4805 €/m²)
Dzīvoklis,
Merķeļa iela, 47m²169 200 € (3600 €/m²)
Dzīvoklis,
Alauksta iela, 45m²138 000 € (3033 €/m²)
Dzīvoklis,
Pulkveža Brieža iela, 70m²210 300 € (3000 €/m²)
Dzīvoklis,
Lāčplēša iela, 50m²177 450 € (3500 €/m²)
Dzīvoklis,
Pērnavas iela, 53m²155 730 € (2900 €/m²)
Dzīvoklis,
Dzirnavu iela, 72m²220 000 € (3039 €/m²)
Dzīvoklis,
Skolas iela, 51m²187 281 € (3651 €/m²)
Dzīvoklis,
Aleksandra Čaka iela, 52m²116 400 € (2213 €/m²)
Dzīvoklis,
Pulkveža Brieža iela, 79m²244 900 € (3100 €/m²)
Dzīvoklis,
Merķeļa iela, 56m²201 600 € (3600 €/m²)
Dzīvoklis,
Dzirnavu iela, 69m²155 000 € (2247 €/m²)
Dzīvoklis,
Pērnavas iela, 72m²227 070 € (3120 €/m²)
Dzīvoklis,
Klijānu iela, 46m²82 000 € (1783 €/m²)
Dzīvoklis,
Pulkveža Brieža iela, 70m²199 000 € (2843 €/m²)
Dzīvoklis,
Dārzaugļu iela, 54m²123 000 € (2253 €/m²)
Dzīvoklis,
Alfrēda Kalniņa iela, 52m²124 800 € (2400 €/m²)
Dzīvoklis,
Čaka iela, 72m²220 000 € (3056 €/m²)
Dzīvoklis,
Tallinas iela, 70m²146 000 € (2086 €/m²)
Dzīvoklis,
Lāčplēša iela, 47m²171 000 € (3600 €/m²)


























