Iznomā biroju, Mednieku iela, Centrs / 1400€
Nav pieejams!

Atrašanās vieta:Rīga, Labais krasts, Centrs
Iela:Mednieku
Ēkas tips:Jaunais projekts
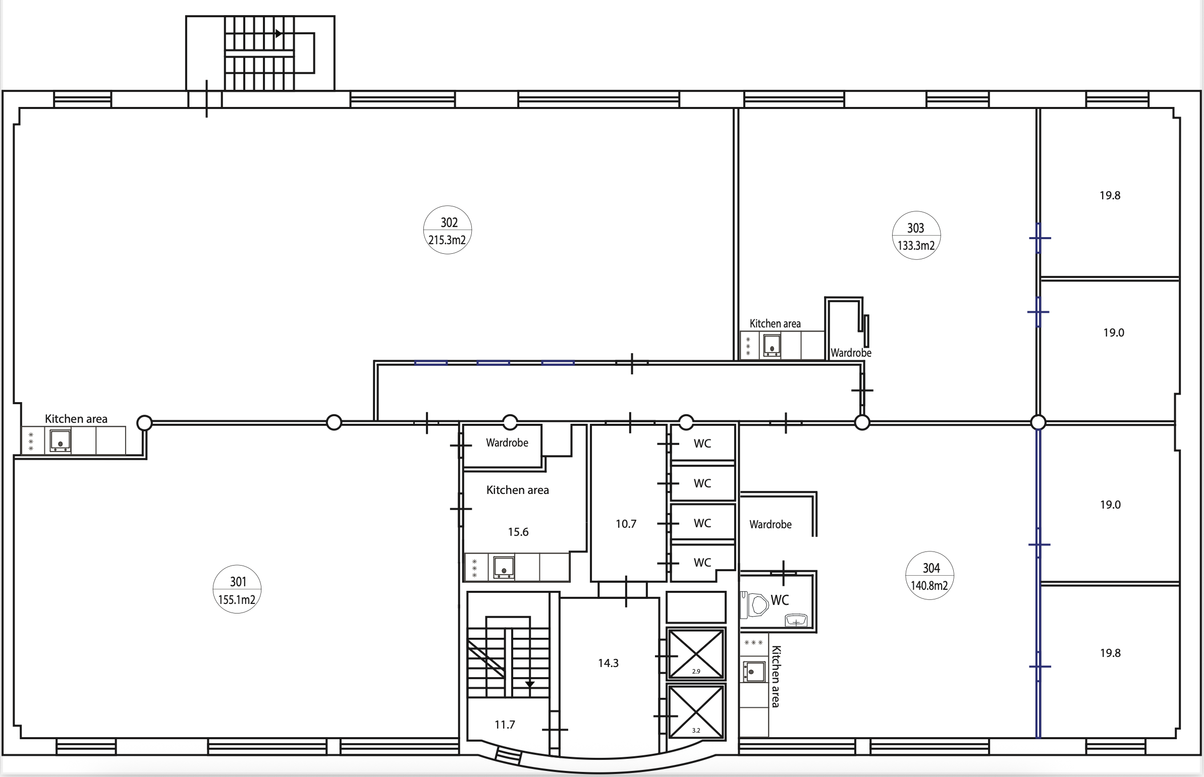
Telpas:3
Stāvs:3/7 (ir lifts)
Platība:133.3 m²
Cena:1 400 € (10.5 €/m²)
Papildus maksājumi:apsaimniekošanas maksa (3.35 €/m²); komunālie maksājumi; skaitītāju rādījumi; PVN (21%)
Pieejams no:iŠodienas

Īpašuma apraksts

Jauns birojs ar atvērtu plānojumu, 2 izolētiem kabinetiem un virtuvi.

Tas atrodas mūsdienīgā biroju ēkā Klusajā centrā.

Nomniekam tiek nodrošinātas 1 maksas autostāvvietas ēkas pazemes stāvvietā. Vienas vietas nomas maksa – 75.00 EUR + PVN mēnesī.

Ēkā pieejami šādi pakalpojumi un ērtības:
labiekārtotas koplietošanas telpas,
piekļuves kontroles sistēma,
videonovērošana ēkas teritorijā un koplietošanas telpās,
Tet un Bite optiskā interneta pieejamība,
2 lifti,
velonovietne,
iespēja izvietot uzņēmuma logo vai izkārtni uz ēkas fasādes.

Ēkā ir ierīkota gāzes apkure, centralizēta dzesēšanas sistēma ar individuālu temperatūras regulēšanas iespēju katrā telpā, kā arī piespiedu ventilācija.

Papildus nomas maksai tiek piemērota ēkas apsaimniekošanas un uzturēšanas maksa 3.35 EUR/m² + PVN, kā arī jāmaksā par patērētajiem komunālajiem pakalpojumiem.

    Īpašuma ID numurs: 64725

    Īpašums kartē

    • Bing karte
    • Bing bird eye
    • Openstreet Karte
    Jānis Lipša
    Jānis Lipša Aģents
    Sazināties ar aģentu:
    • Drukāt

    Līdzīgi īpašumi